Elevated Camp House to Enjoy Nature by Murdough Design Architects
Architecture Design of Elevated Camp House
Description About The Project
Elevated Camp House designed by Murdough Design Architects, conceived as an arrangement of private / semi – private spaces grouped as solid blocks. Indeed, these blocks arranged to frame and hold the common open space of the family room. The family room is the nexus of the house and organized as part of the exterior – with Southern panoramic views of the lake. Also, on approaching the entrance of the house, the building dynamically wraps around the glacial erratic, framing the open family room. And create an aperture with views beyond towards the lake, invite one into the house.
Moreover, the design minimizes impact on the landscape and celebrates the natural site’s character by preserving and weaving through its various features. Also, the adjacent shoreline on the South, a monumental glacial erratic boulder to the north, hover above the forest floor and scattered boulders, and navigating the forest’s hemlock and pine trees.
In addition to this, the material palette of the camp restrained and muted. The exterior neutral grey siding, concrete, and steel visually recede into the shaded landscape of textured grey tree trunks and weathered boulders. Exterior materials carry through to the interior at critical transitions, blur the interior and exterior boundaries. Besides, the interior’s neutral palette highlights and foregrounds the rich and dynamic coloration of the landscape’s foliage, water, and sky.
The Architecture Design Project Information:
- Project Name: Elevated Camp House
- Location: New England, United States
- Project Year: 2020
- Designed by: Murdough Design Architects




















The Elevated Camp House Gallery:




















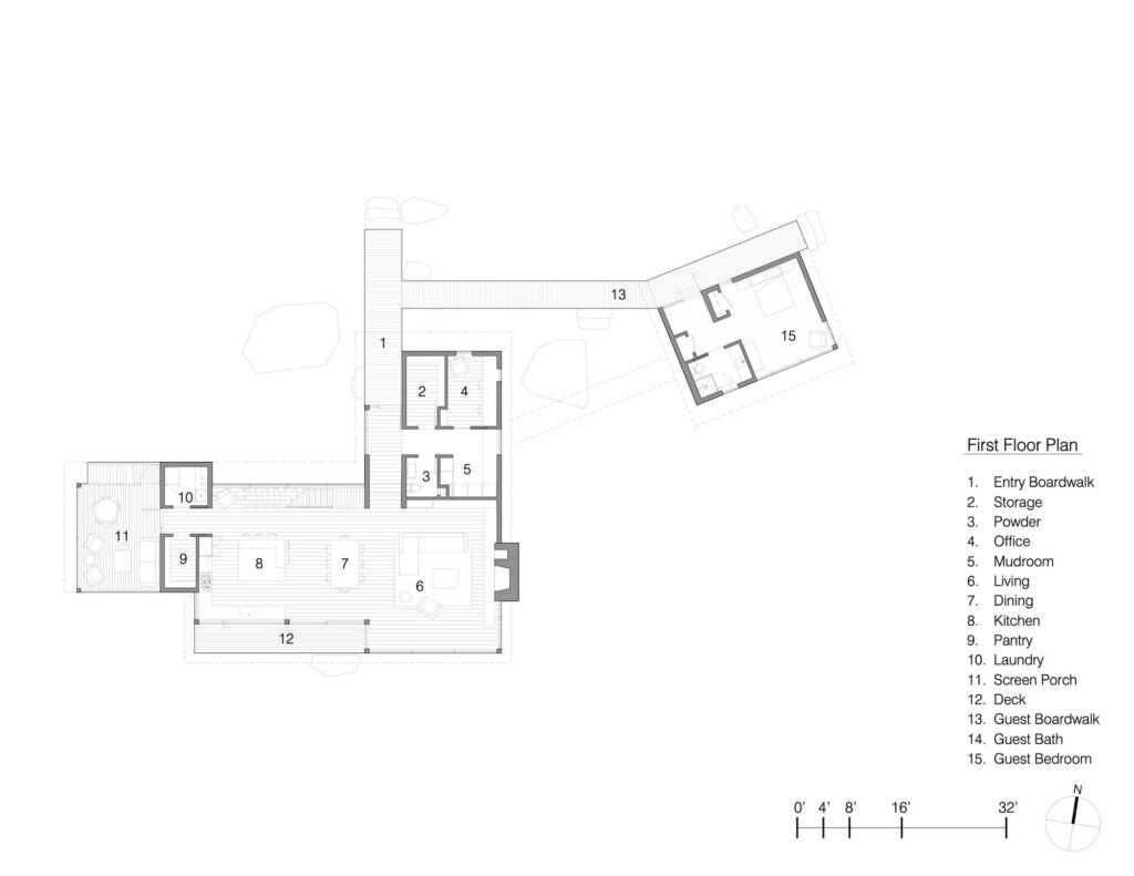
Text by the Architects: Elevated Camp House is a four-season lakeside retreat for a family of five. And is comprised of a 2,733 s.f. residence and a 382 s.f. guest cabin, linked via an elevated boardwalk. The camp is located on the footprint of a prior cabin, allowing the new design to utilize the grandfathered footprint (required by local regulations) and limit the clearing of trees from the site. The clients requested that the camp be intimate and private for the family to enjoy one another, but also open to the site to actively engage and enjoy the natural surroundings.
Photo credit: Chuck Choi Photography | Source: Murdough Design Architects
For more information about this project; please contact the Architecture firm :
– Add: 53 Main St Suite 203, Concord, MA 01742, United States
– Tel: +1 978-341-4100
– Email: contact@murdoughdesign.com
More Projects in United States here:
- Capture a True Country Lifestyle, Majestic Property in Milton, MA Asking for $8.9M
- This $2.699M Beautiful Home Features All Latest Updates for Today’s Lifestyle in Cincinnati, OH
- Spectacular Design Concept of Wallace Mansion by CLR Design Group
- Emerald Modern Home Concept in Laguna Beach by David Hiller Studio
- Woodland House brings the nature beauty by ALTUS Architecture + Design