Villa Connect, with nature harmony by Story Architecture
Architecture Design of Villa Connect
Description About The Project
Villa Connect, located in Moi City, Thu Dau Mot, Binh Duong Province, Vietnam, embodies a vision of simple, balanced living. Designed for a multi-generational family of six, the villa reflects the owner’s love for nature and a lifestyle rooted in minimalism. This project by Story Architecture creates a unique space where family connections, nature, and individuality intertwine seamlessly.
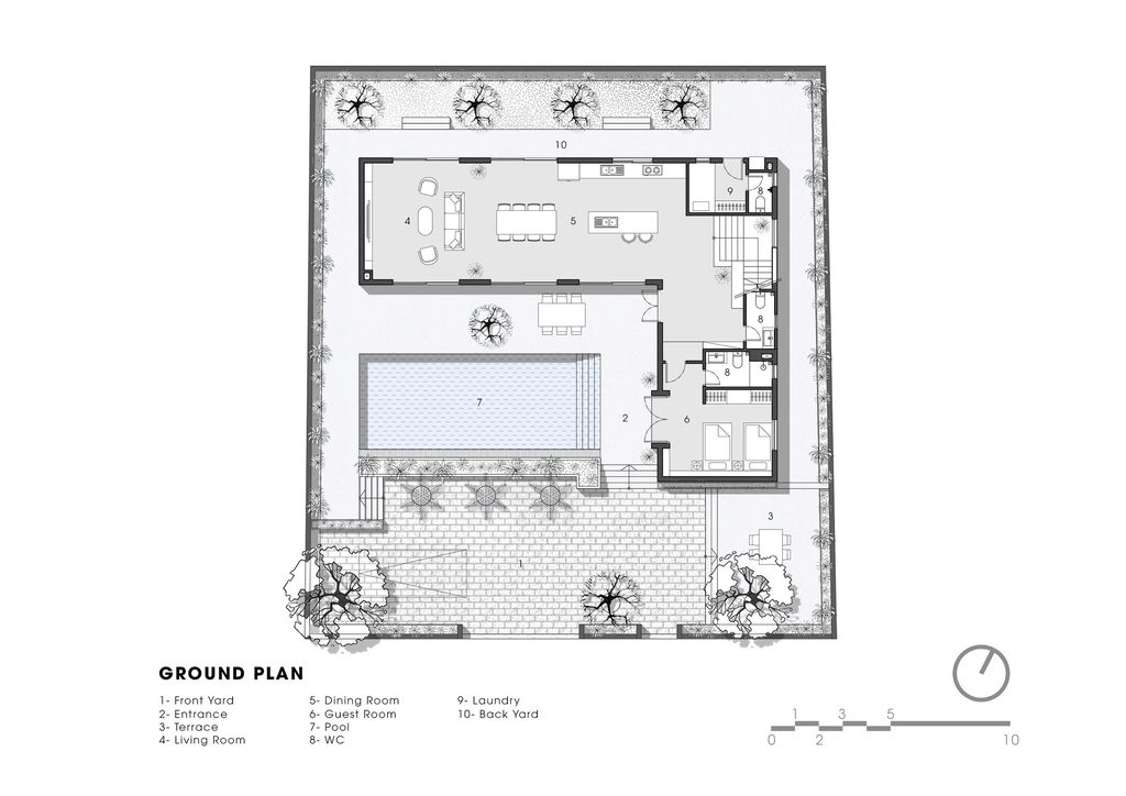
The villa prioritizes functionality and connection over decorative excess, offering an environment where people can enjoy the richness of everyday life. The architectural design achieves harmony through an “L”-shaped structure embracing a central swimming pool, providing serene views and encouraging interaction among family members. Bedrooms are designed with openings to the outdoors and the house’s interior, facilitated by skylights and thoughtfully placed windows, allowing for a dynamic yet private connection between individuals and nature.
The layout ensures privacy by separating bedroom walls while maintaining connectivity through strategic skylight placements and stairwell designs. The villa balances density and openness, creating a spatial rhythm that feels neither excessive nor lacking. With its understated elegance and purposeful simplicity, Villa Connect inspires its residents to cherish reality, fostering happiness and sustainable family living.
The Architecture Design Project Information:
- Project Name: Villa Connect
- Location: Ho Chi Minh city, Vietnam
- Project Year: 2022
- Designed by: Story Architecture
































The Villa Connect Gallery:
































Text by the Architects: Return to reality, that is the criterion when developing ideas to design spaces that serve people. Connect Villa also develops design ideas based on this criterion, when you come back to reality, you can connect well with people, with nature, and with yourself.
– Connect Villa project is located in Moi City, Thu Dau Mot, Binh Duong Province, Vietnam. Connect Villa serves Spouses, 2 sons and grandparents. The owner is a person who has a simple lifestyle, loves nature.
Photo credit: Minq Bui | Source: Story Architecture
For more information about this project; please contact the Architecture firm :
– Add: 59 Phan Huy Thuc, Tan Kieng, District 7, Ho Chi Minh City
– Tel: 093 223 24 22
– Email: returnarchitecture@gmail.com
More Projects in Vietnam here:
- MCHU Villa, Retreat along Da Nang River by MAS Architecture
- Oceanique Villas, seaside sanctuary by MM++ Architects MIMYA
- Stella Casa, Contemporary elegance by Idee Architects
- S-Hilla Villa, Stacked Retreat in Vietnam by Idee Architects
- Villa B- Garden Villa, Coastal Sanctuary by MIA Design Studio