House H.L, a Contemporary Open Home by Celso Laetano Arquitetura
Architecture Design of House H.L
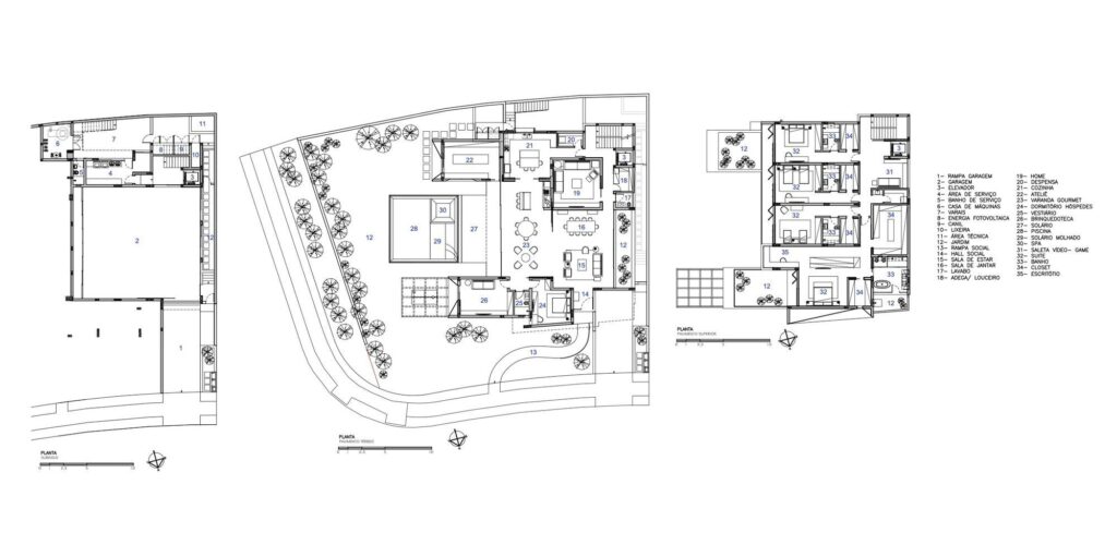
Description About The Project
House H.L designed by Celso Laetano Arquitetura is a stunning project which integrated leisure and landscape. This house offers an ideal spaces for the owner to enjoy nature and high end amenities as well. Hence, almost rooms of this home designed with open plan to get the outside views.
Once insides, the interior of this House H.L such as living room, dining room, kitchen, bedroom and bathroom arranged neatly with the decor follows the contemporary line, with hints of ethnicity. Signed Brazilian furniture, with pieces by Jader Almeida and Sérgio Rodrigues. Besides, the woods follow the light tones (American oak), with hints of white and neutral fabrics. Burnt cement was an initial choice. From there, the coatings and textures came from this choice that makes a beautiful contrast with the American oak present in various environments.
The Architecture Design Project Information:
- Project Name: House H.L
- Location: Piracicaba, Brazil
- Project Year: 2021
- Area: 922 m²
- Designed by: Celso Laetano Arquitetura

































The House H.L Gallery:

































Text by the Architects: A contemporary house, open, fluid, with integrated leisure and landscaping very present. I worked with well-defined volumes broken by inclined angles. Integration of environments with the external area. We use technological materials such as ACM corten, on the facade for this House H.L.
Photo credit: Favaro Jr. | Source: Celso Laetano Arquiteto
For more information about this project; please contact the Architecture firm :
– Add: Av. Maria Elisa, 302 – Vila Rezende, Piracicaba – SP, 13405-232, Brazil
– Tel: +55 19 3421-0907
– Email: celso@celsolaetano.com
More Projects in Brazil here:
- JPP House, Reconciles Architecture and Nature by Zanesco Arquitetura
- Jardim América House with a Unique Identity by TODOS Arquitetura
- House in the Woods with spectacular view of nature by TETRO Arquitetura
- Shed House, a Perfect Comfortable Retreat by Consuelo Jorge Arquitetos
- Sottile House, an Elegant Home in Brazil by Felipe Caboclo Arquitetura