H House, Prominent House to Enjoy Nature by Klochenko Architects
Architecture Design of H House
Description About The Project
H House designed by Klochenko Architects, situated on the bank of the Dnipro river facing the river to the east . There is a significant relief gap between street and bank levels. It divides the plot into 2 big spaces- upper and lower. This house situated on the highest terrace on street level. Indeed, the main value of a house is the possibility to enjoy nature and the site. The exterior and interior look and feel are quite simple in order to not take the main focus from the landscape. In addition to this, the main interior wall finish is clay stucco which brings us a feeling of warmness and connection to traditional Ukrainian building craft. Also, black, nordic exterior finish strengthens the interior’s warm feeling.
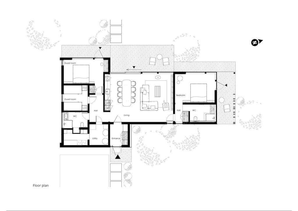
On the other hand, the house plan has the shape extended along the bank in order to provide a panoramic river view for all main rooms. It contains a living room and 2 bedroom blocks: a primary suite on the south and a guest block on the North side. The living room placed between those blocks and has a full glass wall facing east and a higher ceiling which makes it look like a continuation of the outdoors. In addition to this, living and guest blocks have access to a huge terrace in front of the house. The primary suite has its private covered terrace on the South.
Once insides, the main materials for interior finish are clay stucco, ash planks and veneer, and concrete – color tiles for the floor in most areas. Besides, kitchen and bathroom areas have accented walls with olive tiles. House is filled with wood furniture which has rough unfinished edges. It gives the filling of a crafted, rural house.
The Architecture Design Project Information:
- Project Name: H House
- Location: Ukraine
- Project Year: 2022
- Area: 112 m²
- Designed by: Klochenko Architects




























The H House Gallery:




























Text by the Architects: Our clients wanted to create a place to hide from city noise and where they could bring their whole family and friends together. It was necessary to combine the possibility of spending time together and at the same time create 2 separate houses including some private space for each of them. The main function of the H House is recreation, so it was also important to include the following zones: open outdoor kitchen, BBq area, Sauna
Photo credit: Alexander Angelovskiy | Source: Klochenko Architects
For more information about this project; please contact the Architecture firm :
– Tel: +380931904694
– Email: klochenko.architects@gmail.com
More Projects here:
- Head 1843 House Offers Stunning Ocean views in Cape Town by SAOTA
- Head 1818 with Bold Contemporary Lines and Extended Planes by SAOTA
- Victoria 73 House with Stunning Ocean Views in South Africa by SAOTA
- Clifton 2A Residence in Cape Town, South Africa by SAOTA
- Elegant Plett 6541+2 House, a Beach House in South Africa by SAOTA