Iconic Contemporary Estate in Atlanta, Georgia: A Spectacular Landmark Listed at $2.35 Million
3670 Ridgewood Rd NW Home in Atlanta, Georgia
Description About The Property
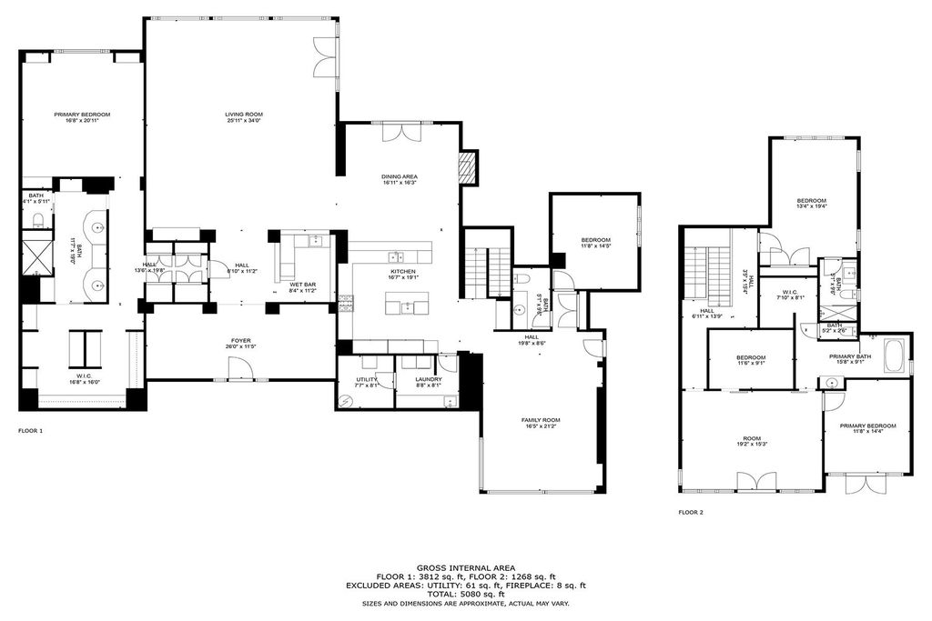
This modern 4-bedroom, 4-bathroom estate at 3670 Ridgewood Rd NW in Atlanta, Georgia is a true masterpiece. Spread across 5,757 sqft on a private 2.5-acre lot, it’s an iconic landmark in Buckhead’s Paces neighborhood. With 12ft ceilings and ample windows, the home is flooded with natural light. The main level features a spacious living cum formal dining area, a wet bar, inviting family room, cozy breakfast nook, and office space. The chef’s kitchen boasts stone counters, Siematic cabinetry, and premium stainless-steel appliances. The primary suite, with hardwood floors and custom closets, is on this level too. Upstairs, three bedrooms, two renovated bathrooms, and a bonus loft await. Outdoors, enjoy the two-tiered front porch and a serene backyard with firepit. Located in Jackson Elementary school district, it offers easy access to the city’s best amenities. Luxurious living meets prime location!
To learn more about 3670 Ridgewood Rd NW, Atlanta, Georgia, please contact Kim Boyd – Atlanta Fine Homes Sotheby’s International – (404) 237-5000 for full support and perfect service.
The Property Information:
- Location: 3670 Ridgewood Rd NW, Atlanta, GA 30327
- Beds: 4
- Baths: 4
- Living: 5,757 sqft
- Lot size: 2.52 Acres
- Built: 1988
- Agent | Listed by: Kim Boyd – Atlanta Fine Homes Sotheby’s International – (404) 237-5000
- Listing status at Zillow
ADVERTISEMENT

ADVERTISEMENT


ADVERTISEMENT

ADVERTISEMENT


ADVERTISEMENT

ADVERTISEMENT


ADVERTISEMENT

ADVERTISEMENT


ADVERTISEMENT

ADVERTISEMENT


ADVERTISEMENT

ADVERTISEMENT


ADVERTISEMENT

ADVERTISEMENT


ADVERTISEMENT

ADVERTISEMENT


ADVERTISEMENT

ADVERTISEMENT


ADVERTISEMENT

ADVERTISEMENT


ADVERTISEMENT

ADVERTISEMENT





















The Property Photo Gallery:




















































Text by the Agent: This spectacular contemporary estate situated on 2.5+/- private acres is an iconic landmark in the heart of Buckhead’s Paces neighborhood! Sophisticated and modern yet comfortable and livable, this home is for the most discerning of buyers. Upon entering this special private retreat, you are greeted by a private drive, mature landscaping, an enormous motor court, and a turfed front yard. Walk in the huge front door to a spacious art collector’s foyer and 12ft ceilings. The entire home is inundated with natural light, walls of windows, soaring ceilings, and contemporary touches. An entertainer’s oasis, the main level includes a vast living room that also functions as a formal dining room seating 12+, a huge wet bar area perfect for entertaining large parties, an office, an intimate yet spacious family room, a fireside breakfast room off the chef’s kitchen, and a powder room. The kitchen features stone counters; Siematic cabinetry; stainless steel appliances including an 8-burner gas Russell range and Gaggenau ovens; a wine fridge, and tons of storage. The primary suite is also located on the main level and is equipped with hardwood floors, custom California closets, his and hers vanities, a dual shower, and light filled bedroom. Upstairs there are three bedrooms, two renovated bathrooms, a loft-like bonus space and access to the front deck. Outdoors includes a two-tiered front porch, a back yard entertaining area with a firepit, tons of privacy, grassy space and exterior storage. Located in Jackson Elementary school district and in close proximity to the city’s best restaurants, shopping, schools and easy access to the interstate.
Courtesy of Kim Boyd – Atlanta Fine Homes Sotheby’s International – (404) 237-5000
* This property might not for sale at the moment you read this post; please check property status at the above Zillow or Agent website links*
More Homes in Georgia here:
- Grand Country Estate with 22 Private Acres in Georgia Listed for $4.9M
- Elevated Coastal Living: $6.595M Georgia Residence with Sweeping Waterfront Scenery
- The Crown Jewel of The Manor: A 6-Acre Private Sanctuary Hits the Market for $4,975,000
- $11.8M Georgia Lakefront Masterpiece Showcases Exceptional Craftsmanship



