Tube House, an Impressive T.U.B.E. House by Volume Matrix Studio
Architecture Design of Tube House
Description About The Project
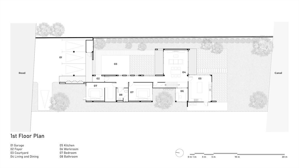
Tube House designed by Volume Matrix Studio, located in narrow and deep area. Therefore, the architects come up with the idea of the T.U.B.E. house, the wind ‘Tunnel’ that ‘Unite’ the ‘Brotherhood’ and family together while concerning the ‘Environment’ of the site.
The tube space placed parallel to the site allows the wind to flow through the mass and flow into each room in the house, creating cross ventilation in the house. The architecture is designed to be 2 stories house. Hence, the house’s owner can enter the house through a shortcut of the tube, but the guest must walk along the pebbled courtyard to the living room.
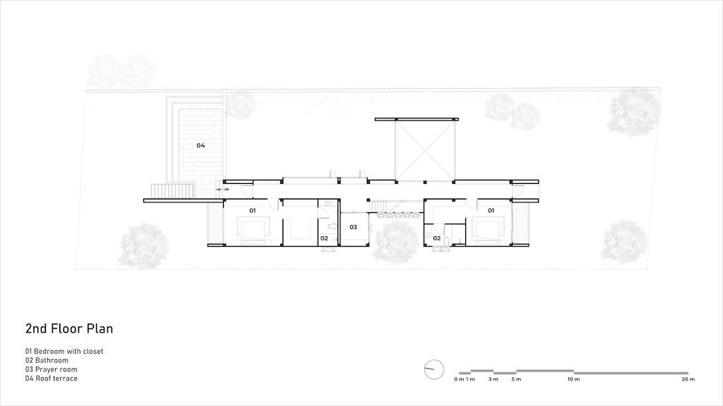
During the daytime, one will live in the living room which designed to have an opening connected to the tube space to let the wind flow into the living room. Also, create a visual connection between the family living space. On the second floor, there is tube space and two bedrooms. The tube space is the main corridor of the second floor and could be used as a recreation space in the house such as a reading space, or gallery space. Apart from the ventilation issue, the tube also creates an echo effect that allows family members in the house to talk to each other from different corners of the house.
There are many pocket gardens with different environments around the house. The front garden gives privacy and a view of the master bedroom, The pebble garden is a welcoming garden for the guest and view of the living room. Indeed, this garden will be shaded by the tube mass during the daytime. Therefore it is suitable to come out and enjoy the fresh air.
The Architecture Design Project Information:
- Project Name: Tube House
- Location: Bang Phra, Thailand
- Project Year: 2020
- Area: 420 m²
- Designed by: Volume Matrix Studio










The West pocket garden next to the main stair blocks the direct sunlight before entering the living room and there are many windows next to this garden that could be opened to create cross ventilation into the living space. The backyard garden next to the canal is suitable to plant tropical trees due to the whole-day sunlight.









The Tube House Gallery:




















Text by the Architects: The owner of the project – Tube House is one of three siblings. Since none of the siblings has children, the owner intends to build a house for her mom and her siblings to live together and be able to take care of each other. After the site visit, the architect found that the site is narrow and deep, therefore, the wind cannot flow into the site if we build a building across it. With the objective and site condition, the architects come up with the idea of the T.U.B.E. house, the wind ‘Tunnel’ that ‘Unite’ the ‘Brotherhood’ and family together while concerning the ‘Environment’ of the site.
Photo credit: Spaceshift Studio| Source: Volume Matrix Studio
For more information about this project; please contact the Architecture firm :
– Add: 189 Charoen Rat 7 Yeak 35 Alley, Bang Khlo, Bang Kho Laem, Bangkok 10120, Thailand
– Tel: +66 87 823 3757
– Email: volumematrixstudio@gmail.com
More Projects in Thailand here:
- Sky Dream Villa in Chaweng Noi, Thailand
- Seacliff Modern Villa Concept in Cape Sawan, Thailand by SAOTA
- Akas Villa in Thailand by Black Pencils Studio
- MT House with Simple Lifestyle and Harmony with Nature by Urban Praxis
- Pie House, An Impressive White Concrete Block by Greenbox Design