Concrete Cut house, a Home of Concrete and Glass by Pitsou Kedem
Architecture Design of Concrete Cut House
Description About The Project
Concrete Cut house designed by Pitsou Kedem Architects, located in Ramat Gan, Israel with impressive combination of concrete and glass. Viewed from the front it looks like a monolithic operation of materials with a deep, monochromatic range of colors. Three rectangular prisms, lain upon one another, into a peaceful composition, stable and subdued, appearing as heavy masses. On the other hand, a second, discerning glance reveals a dramatic encounter of materials taken from two separate worlds poured, massive concrete and glass panels.
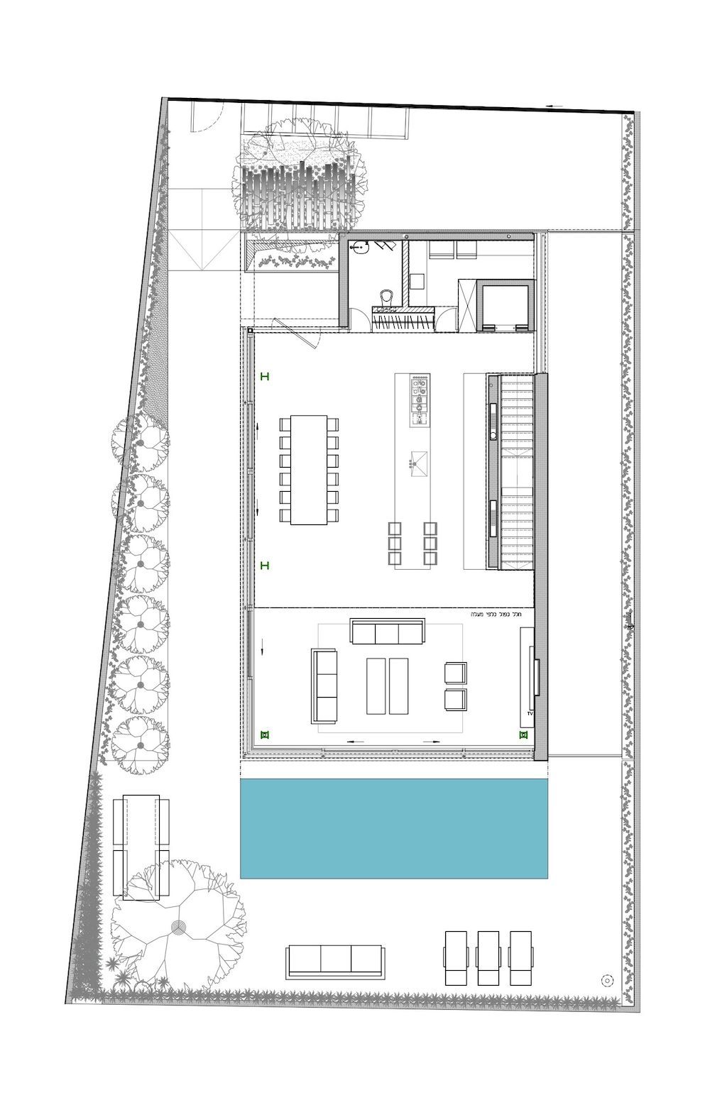
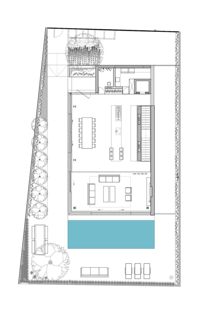
The entrance to the home occurs on the Western side at the patio garden starting from the basement leading to the living rooms, accompanying visitors by degrees from the outer to the inner worlds. In addition to this, two yards run along the children’s quarters, one is a patio ascending to the entrance. And the other runs along the Eastern side providing light, air, and an abundance of privacy.
Once insides, the living rooms are double in size and face the Southern gardens visible from a library entrance on the same level as the private rooms. Two staircases lead to the living areas, one descending to the children’s area and another ascending to two additional levels one containing the children’s living rooms and another with the parents rooms.
Indeed, the design of the space and their dispersal upon four planes creates in each one a sense of maximal privacy and although none is entirely exposed each of them comfortably access the exterior. Thus a structure of concrete and glass of various transparencies is created, the materials stray between one another as the visitor strays between the structure itself.
The Architecture Design Project Information:
- Project Name: Concrete Cut House
- Location: Ramat Gan, Israel
- Project Year: 2014
- Area: 5,382 sqft / 500 sqm
- Designed by: Pitsou Kedem Architects


































The Concrete Cut House Gallery:
Text by the Architects: The creation of a line, this birth of the visual act, has been a meeting point throughout history of art, science and technology from the dawn of writing to the abstractness of cave drawings and the penning of mathematical formulas all of them make use of graphics to express a novel idea. A line on a dark background short or long, thin or thick sometimes expresses orientation or movement, at times convergence or divergence, pain and freedom, connection or physical repulsion. It is one of the most fascinating of its properties that the very border, which a line draws also permanently breaks worlds in two. A single lines simultaneously divides and connects separate worlds each one onto himself.
Photo credit: Amit Geron| Source: Pitsou Kedem Architects
For more information about this project; please contact the Architecture firm :
– Add: 39 Maze St. Ground Floor Tel-Aviv
– Tel: 03.6204493
– Email: office@pitsou.com
More Projects here:
- Elegant N2 House in Israel Around Seven Spatial Stages by Pitsou Kedem
- Modern Home in Israel by Pitsou Kedem
- AB House with Grid-like Perforated Screens Features by Pitsou Kedem
- A House by The Sea Features Stripy Aluminium Walls by Pitsou Kedem
- M3 House, a Fully Glazed Walls and Covered Walkways by Pitsou Kedem







