Couri House, Elegant single-story one by ARQBR Arquitetura e Urbanismo
Architecture Design of Couri House
Description About The Project
Couri House designed by ARQBR Arquitetura e Urbanismo located in a residential condominium, in Central Brazilian region of the Cerrado. Indeed, the project conciliates this context with the family’s desire: to build a small single story house, with a shaded veranda, obtaining the largest space of green area possible.
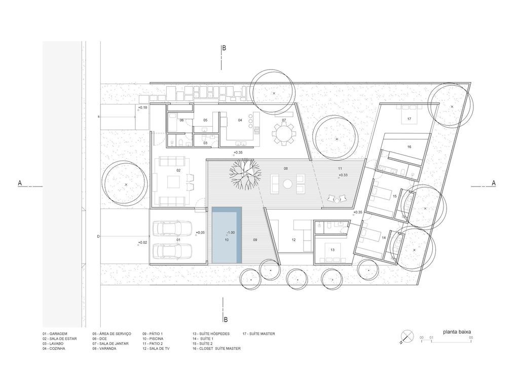
The strategy adopted was to design the plan in the shape of a ribbon that develops through the plot, adjust itself to its perimeter. Therefore, create voids through which the intended spatial relations could be obtained. Also, These voids converted into living and leisure patios, promote contact with the gardens and the neighboring green area. In this configuration, the patio that opens to the woods also welcomes the native tree.
The distribution of the spaces and their relationships promote unusual paths through the house. For it is natural to walk through open space to reach a closed one, such as the one between the living room and the porch. Then, passing through the patio, or from the dining room to the TV room, passing through the porch. In this way, everyday life experiences this relationship of continuity between inside and outside, and through it, contact with nature and the sky.
The Architecture Design Project Information:
- Project Name: Couri House
- Location: Brasília, Brazil
- Project Year: 2021
- Area: 340 m²
- Designed by: ARQBR Arquitetura e Urbanismo






























The Couri House Gallery:
Text by the Architects: On this 713 sq.m plot, located in a residential condominium, there is a solitary pequi native tree, legally protected and very representative of the Central Brazilian region of the Cerrado. Adjacent to the lot, a green non-buildable area, still flourishing, promises to become a densely wooded forest, a common green space to the residents of the condominium.
Photo credit: Joana França| Source: ARQBR Arquitetura e Urbanismo
For more information about this project; please contact the Architecture firm :
– Add: Asa Norte CLN 111 BL A Sala 111 – Asa Norte, Brasília – DF, 70754-510, Brazil
– Tel: +55 61 99116-9179
– Email: contato@arqbr.arq.br
More Projects in Brazil here:
- LO House, Create Harmony of Nature by Dado Castello Branco Arquitetura
- Casa EL, Elegant and Modern Leisure Home in Brazil by MBBR Arquitetos
- LM House, a practical and comfortable Home by João de Barro Arquitetura
- Courtyard House M.A., Stunning Luxurious Home in Brazil by Studio AFS
- JSL House with The Privileging Views to The Sea by Bernardes Arquitetura





