Stunning Project 216 Ocean View Drive House by Robert Silke & Partners
Architecture Design of this Stunning Project 216 Ocean View Drive House
Description About The Project
Stunning Project named 216 Ocean View Drive House with Chic Spaces by Robert Silke & Partners, for blue-chip clients presents as both futuristic and established at the same time. Indeed, this 600m² family home achieves its luxury through soaring volumes. Also, achieves its privacy by making the most of the established “jungle” for which the site was specifically acquired. By lovingly retaining all existing trees, the house avoids the nouveau riche scorched earth policy which has become de rigeur on Cape Town’s Atlantic Seaboard.
On a corner plot of 700m² the house departs from the suburban norm by lining its two street edges as a perimeter block. Also, creating a protected private garden with sea views and precious Northern aspect. As an appropriate reflection of the personality of the clients, the muscular public façades are solid and reserved – whilst the private facades are extroverted and heavily fenestrated with super – sized panes of sliding glass.
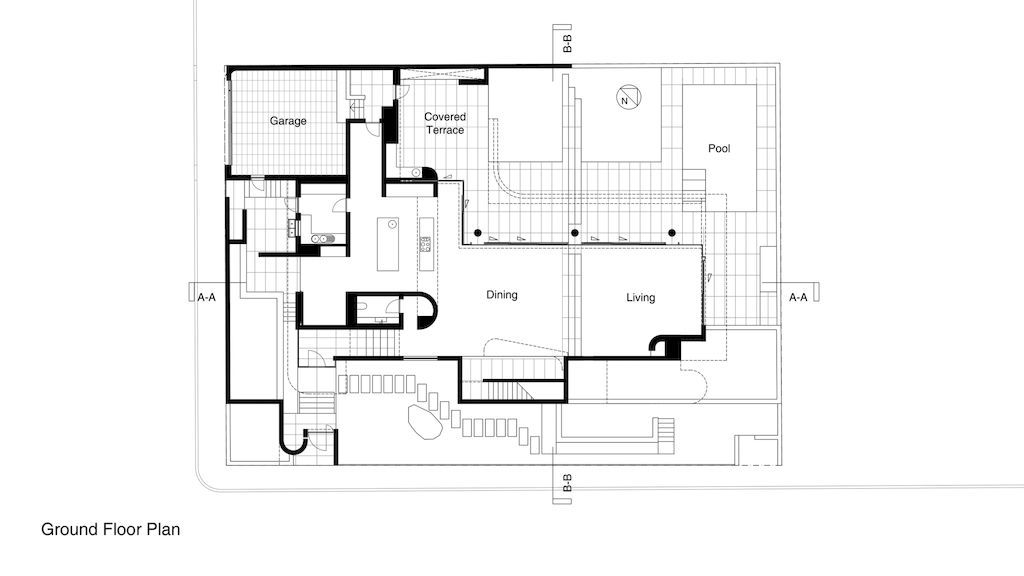
All living, dining and kitchen areas are easily accessed on the high-volume ground floor entrance level with large covered wraparound braai terraces, pool and lawn. On the other hand, upstairs, via a dramatic stairwell with jungle aspects the growing family’s four bedrooms all share one huge and magnificent nautical view terrace with arcadian vistas over Cape Town’s Atlantic suburbs.
The Architecture Design of this Stunning Project Information:
- Project Name: 216 Ocean View Drive House
- Location: Cape Town, South Africa
- Project Year: 2020
- Area: 600 m²
- Designed by: Robert Silke & Partners
























The Stunning Project 216 Ocean View Drive House Gallery:
























Text by the Architects: This sophisticated home, for a family of blue-chip property developers, presents as both futuristic and established, all at the same time. It’s rare to find an enlightened client with a yen for good architecture. Indeed, the confidence to realize something eccentric, sculptural and out-of-the-box in an aesthetically conservative neighborhood. Also, the couple met in Tel Aviv where they developed an abiding love of the White City, which designed by Bauhaus architects escaping the Nazis.
Photo credit: Adam Letch | Source: Robert Silke & Partners
For more information about this project; please contact the Architecture firm :
– Add: 28 Wale St, Cape Town City Centre, Cape Town, 8001, South Africa
– Tel: +27 21 200 5966
– Email: hello@robertsilke.com
More Projects in South Africa here:
- The Tree House in Durban surrounded by Coastal forest by Bloc Architects
- The Forest House by Bloc Architects and Kevin Lloyd Architects
- The Terrace house, Connect to landscape by W Design Architecture Studio
- Umdloti House 2, Modern Design with Raw Material by Bloc Architects
- Private House in South Africa by Malan Vorster Architecture Interior Design