AIKYA House, structure of times past but modernity by Techno Architecture
Architecture Design of AIKYA House
Description About The Project
AIKYA House designed by Techno Architecture, located in 4800 sq.ft site of South Bangalore. The house is perfect combination between the structures of times past, but still showcases the modernity spirit of contemporary life. Indeed, contemporary needs and the clients strict brief of ‘no clutter home’ helped to frame the color palette of the house.
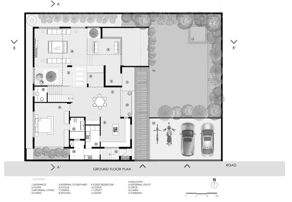
Once inside, the house occupies one portion of the large site area. Then, in turn orients itself into a larger external courtyard that occupies the other half of the site. Entering directly into the landscape area, highlight by the courtyard. While the water body in the Northeast corner flanked by the landscaped lawn.
On the Eastern side of the ground floor, living and the dining areas look directly over the garden and the water body and are designed as a single large area. While the other spaces like kitchen, bedroom… designed to contribute the ordered flow of the property. Also, creating an air of space and tranquility.
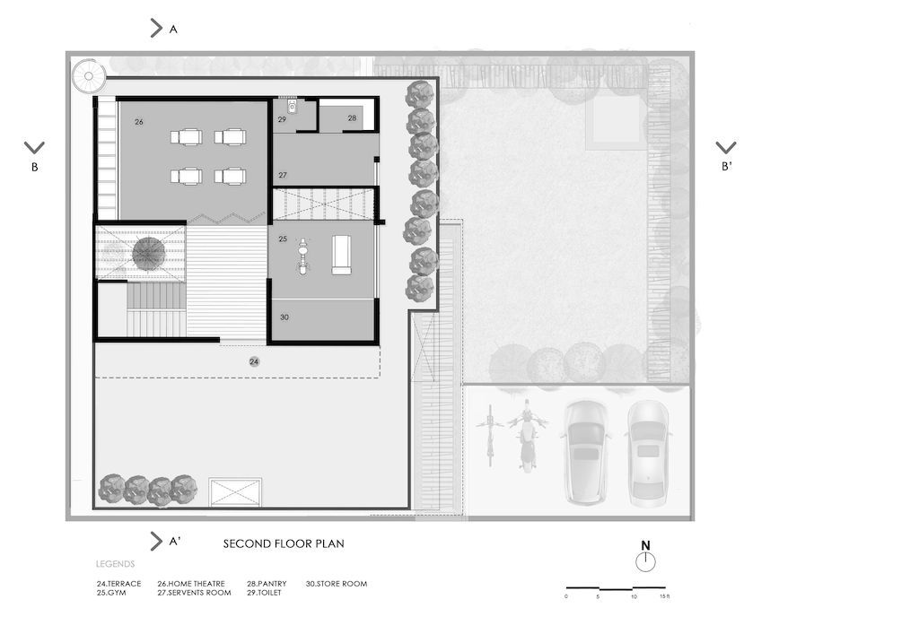
On the second level, the common utilities like the audio-visual room, bar, and the gym are positioned to have privacy as well as protection from direct sunlight. Besides, all the spaces naturally directed inwards. In order to utilize the central indoor court as well the external landscaped lawn to become focal points. Also, underscoring the dramatic symbiosis between indoor and outdoor spaces.
The Architecture Design Project Information:
- Project Name: AIKYA House
- Location: Bengaluru, India
- Project Year: 2019
- Area: 6500 m²
- Designed by: Techno Architecture


































The AIKYA House Gallery:
Text by the Architects: This house based in south Bangalore in a 4,800 sq. Ft site is a perfect representation of Techno architecture’s ongoing interaction with the new language of tropical residential architecture. Evocative of the simple, open structures of times past, yet possessed of a modernity of spirit perfectly in keeping with contemporary life. The house conflates, rather than juxtaposes indoor mad outdoor spaces in perfect harmony.
Photo credit: Shamanth Patil| Source: Techno Architecture
For more information about this project; please contact the Architecture firm :
– Add: No 9, Uttaradhi Mutt Road, Shankar Puram, Basavanagudi Bangalore, Karnataka, India
– Tel: +91 80 4210 3764
– Email: technoarchitecture@gmail.com
More Projects in India here:
- H House, a Typical Bungalow with a Garden by Co.lab Design Studio
- C+S House, Stunning Renovation from 1970’s Era House by AE Superlab
- Aranya House in India by Modo designs
- The Screen House in India by The Grid Architects
- S5 House, The House with a Ribbon Envelope by Raz Melamed Architect












