Aspen House, U-shaped form with nature connection by Studiocolnaghi
Architecture Design of Aspen House
Description About The Project
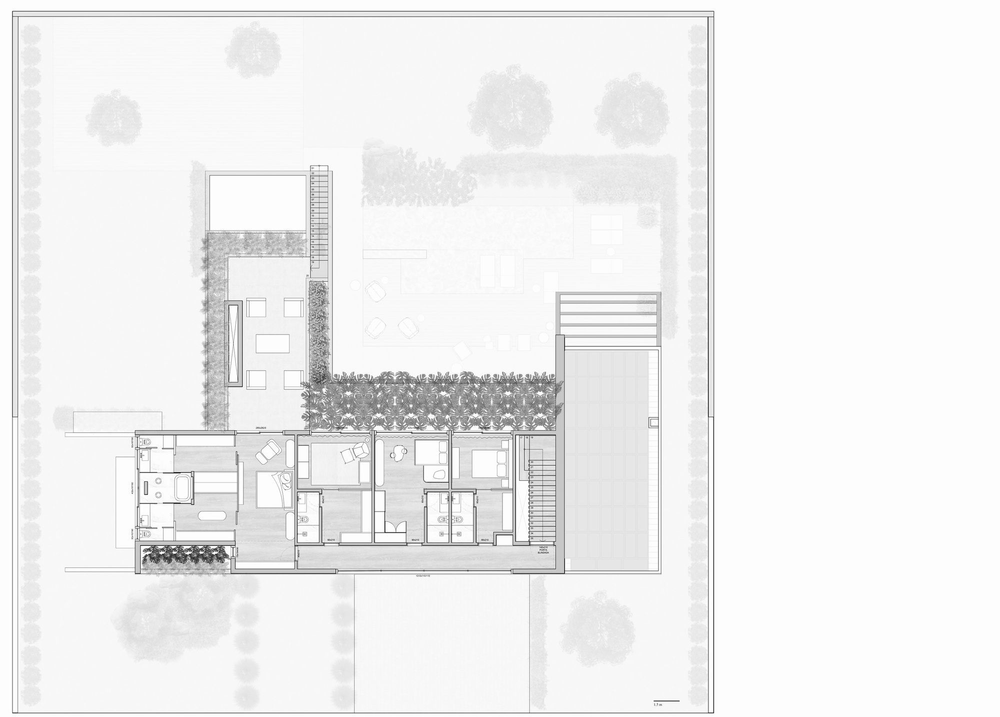
Aspen House designed by Studiocolnaghi, with the concept of this design was to keep privacy while exploring visual amplitude and nature connection. The ground floor projective intention is a U-shaped form that surrounds the pool and is surrounded by the landscape.
On the second floor, the architecture shape follows a linear bar that accommodates all the bedrooms which opened to the valley view. Whilst, this volume front façade mainly closed. And it has only a single horizontal glass surface. Backing to the ground floor, the different uses show the integration potential of the site area. Along with the gourmet area, the wine cellar creates a background which is possible to see thought it the landscape. In addition to this, the wood ceiling maximize the space amplitude. Also, it creates a coziness sensation to the space as long as it spreads throughout social area.
On the other hand, it was a challenge to combine extended glass openings at the same time to solutions that could guarantee privacy. At this central courtyard, where the pool located, the minimalist openings potentialize the connection between interior and exterior spaces. Also, the side façades are mainly solid and closed. In summary, the architectural result is a well-integrated shape to nature, in a cozy house using natural materials.
The Architecture Design Project Information:
- Project Name: Aspen House
- Location: Gramado, Brazil
- Project Year: 2020
- Area: 11410 ft²
- Designed by: Studiocolnaghi
ADVERTISEMENT

ADVERTISEMENT


ADVERTISEMENT

ADVERTISEMENT


ADVERTISEMENT

ADVERTISEMENT


ADVERTISEMENT

ADVERTISEMENT


ADVERTISEMENT

ADVERTISEMENT


ADVERTISEMENT

ADVERTISEMENT


ADVERTISEMENT

ADVERTISEMENT


ADVERTISEMENT

ADVERTISEMENT


ADVERTISEMENT

ADVERTISEMENT

The Aspen House Gallery:


























Text by the Architects: The landscape was an essential element to develop this Aspen House along with the site topography. Indeed, the main concept of this design was to keep privacy while exploring visual amplitude and nature connection. The ground floor projective intention is a U-shaped form that surrounds the pool and is surrounded by the landscape. In addition to this, on this floor, the main spaces and uses are integrated, and there are between them, living, dining, and gourmet area. Around those uses previously related, on this floor, there are a kitchen, laundry, cinema, and office, they, together, help to guarantee privacy.
Photo credit: Vinícius Ferzeli | Source: Studiocolnaghi
For more information about this project; please contact the Architecture firm :
– Add: Rua Thomas Edson, 478 – Ivoti , RIO GRANDE DO SUL
– Tel: +55 51 3563-6767
– Email: arquitetura@studiocolnaghi.com
More Projects in Brazil here:
- JPP House, Reconciles Architecture and Nature by Zanesco Arquitetura
- Jardim América House with a Unique Identity by TODOS Arquitetura
- House in the Woods with spectacular view of nature by TETRO Arquitetura
- Shed House, a Perfect Comfortable Retreat by Consuelo Jorge Arquitetos
- Sottile House, an Elegant Home in Brazil by Felipe Caboclo Arquitetura