Casa Annunziata, a Glass House Blend in with Nature by Specht Architects
Architecture Design of Casa Annunziata
Description About The Project
Casa Annunziata, located in the United States and designed by Specht Architects, is a truly remarkable space that embodies simplicity and spirituality. The name itself, meaning “spiritual announcement” in Italian, aptly reflects the immaculate minimalist design and the richly adorned art collection housed within. Situated at the rear of a 4.5 acre field, enveloped by majestic trees, this symmetrical home stands in perfect harmony with the entry road.
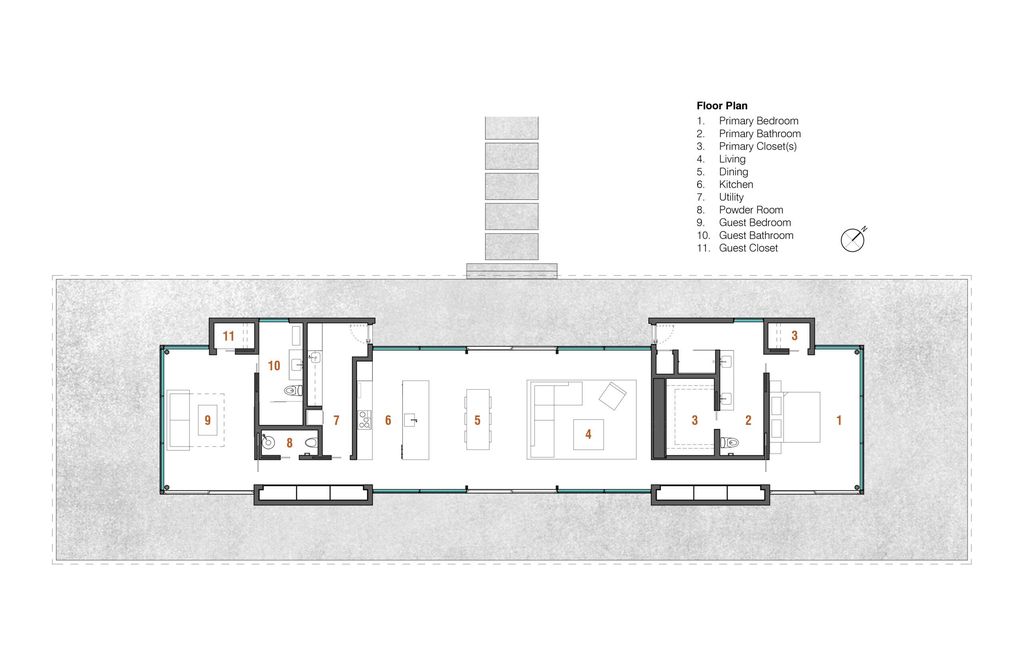
Indeed, spanning 2,000 square feet, this single-story pavilion boasts a slender floating roof that dramatically extends 15 feet beyond the perimeter walls. This design departure is a stark contrast to the owners’ previous 18th century farmhouse, showcasing their embrace of modernity. Once inside, the open layout features a central living area, flanked by bedroom suites on either end. Also, this remarkable space serves as a revolving gallery, showcasing the owners’ lifetime collection of intricate art pieces and ornamental objects.
Living in Casa Annunziata feels magical, as the glass walls dissolve the boundaries between the interior and nature. The homeowners find themselves immersed in the beauty of the surrounding garden, sharing their living space with deer, wild turkeys, and a myriad of birds. Overall, this serene retreat truly embodies a seamless integration of architecture, art, and nature. Also, creating an enchanting environment for its residents.
The Architecture Design Project Information:
- Project Name: Casa Annunziata
- Location: Sheffield, MA, United States
- Designed by: Specht Architects
- Interior Design: By Owners
ADVERTISEMENT

ADVERTISEMENT


ADVERTISEMENT

ADVERTISEMENT


ADVERTISEMENT

ADVERTISEMENT


ADVERTISEMENT

ADVERTISEMENT


ADVERTISEMENT

ADVERTISEMENT


ADVERTISEMENT

ADVERTISEMENT


ADVERTISEMENT

ADVERTISEMENT

The Casa Annunziata Gallery:




















Text by the Architects: Annunziata means “spiritual announcement” in Italian and it is an appropriate descriptor for this immaculately minimalist space and the intensely ornamental art collection inside.
Photo credit: Dror Baldinger | Source: Specht Architects
For more information about this project; please contact the Architecture firm :
– Add: Austin/ New York, United States
– Tel: 212-239-1150
– Email: info@spechtarchitects.com
More Projects in United States here:
- Bellingham, WA Home with Spectacular Mountain Views Hits Market at $2.2M
- Scenic Private Estate on 5-Acre Gated Property in Ridgefield, WA with Stunning Valley Views for $7.25M
- Elk Range Overlook Connects with Outdoor Landscape CCY Architects
- Cordell House, Stunning luxury project in Beverly Hills by McClean Design
- White Patio House with minimalist yet modern design by Pashenko Works