Contemplation House, Harmony with Nature by Virginia Kerridge Architect
Architecture Design of Contemplation House
Description About The Project
Contemplation House designed by Virginia Kerridge Architect, nestled amidst the serene hills of Byron Bay. Indeed, this house offers a breathtaking vista of the sea and sky, perched in a secluded rural and rainforest setting. This ethereal residence bears witness to the ever changing seasons of nature, attuned to the wisdom and philosophies of Indigenous cultures, intricately woven into its design ethos.
Embracing the concept of life as a circular journey, the house’s architectural layout and movement through its spaces are inspired by these philosophical ideas. Its design beautifully captures the changing dynamics of light and orientation, harmonizing with the natural environment. The abode responds to the northern sun and eastern ocean views, with living areas offer an ever evolving panoramic spectacle that informs and inspires.
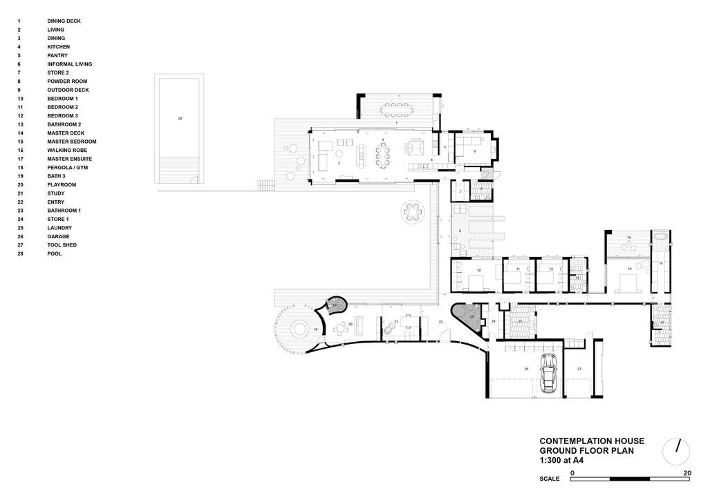
Defined by a U-shaped plan around a central garden, the house provides a sheltered retreat against North – Easterly winds. At its heart lies a contemplation space, fostering stillness, introspection, and serenity — a sanctuary for reflection and repose. Connectivity with nature is apparent as the house seamlessly merges with garden areas on all sides.
The Architecture Design Project Information:
- Project Name: Contemplation House
- Location: Byron Bay, Australia
- Project Year: 2020
- Area: 650 m²
- Designed by: Virginia Kerridge Architect
ADVERTISEMENT

ADVERTISEMENT

Landscape design by Jane Irwin Landscape Architects complements the local bushland, enriched by extensive bush regeneration by the client, utilizing native species endemic to the region.

ADVERTISEMENT

ADVERTISEMENT


Recycled materials and sustainable elements pervade the house, featuring grayed-off hardwood cladding, recycled blackbutt wall cladding and floors, and an absence of VOCs, instilling a tactile and organic quality, accentuating the profound connection to the land and the essence of life itself.
ADVERTISEMENT

ADVERTISEMENT


ADVERTISEMENT

ADVERTISEMENT


ADVERTISEMENT

ADVERTISEMENT


ADVERTISEMENT

ADVERTISEMENT


ADVERTISEMENT

ADVERTISEMENT

The Contemplation House Gallery:




















Text by the Architects: Set in a magical setting in the hills of Byron Bay the house has an extraordinary view of the sea and sky, and sits in a private rural and rainforest setting. All seasons of nature are observed firsthand by this house on the hill. The owners are very interested in the philosophy of Indigenous peoples and these philosophies are reflected in the design. Among ideas explored was the idea of the life of a man being a circle from childhood to childhood; another was the idea of connectivity with nature.
Photo credit: | Source: Virginia Kerridge Architect
For more information about this project; please contact the Architecture firm :
– Add: G03/59 Great Buckingham St, Redfern NSW 2016, Australia
– Tel: +61 2 9699 3487
– Email: info@vk.com.au
More Projects in Australia here:
- M House, Fusion of Brazilian Modernism and Natural by Rama Architects
- Sorrento Beach House Blends Aesthetics and Design by Jost Architects
- Bona Vista House with a Warm and Cozy Spaces by Architect Prineas
- The House at Lizard Island Offers Stunning Ocean Views by JDA Co
- Cliffside House Perched Above Lake Austin by LaRue Architects