Four & Four House with Unobstructed Views of Water by Mcleod Bovell
Design of Four & Four House
Description About The Project
Four & Four House designed by Mcleod Bovell Modern Houses, a renown designer based in Canada. Located on a steep waterfront lot flanked by a suburban context, this home adapts the owner’s affinity for mid-century, post-and-beam construction with contemporary adaptations.
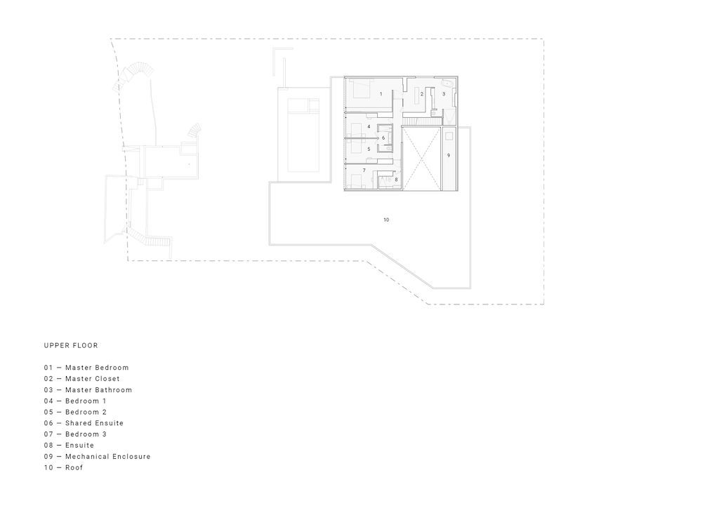
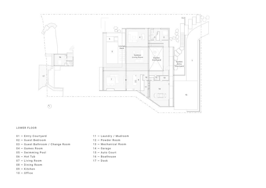
Spatially, the central courtyard separates the flanking formal and informal living areas. While still allowing visual connection through full – height glazing. In addition to this, a fully glazed gallery acts as the intersection between the living spaces, sunken courtyard, and garden. Also, the upper floor — a screened volume that contains the bedrooms — spans the outdoor living room below like a bridge.
On the other hand, a sunken courtyard at the entrance framed by concrete walls provides lateral and vertical separation between vehicular movement and guest arrival. Also, a naturally planted garden courtyard opens up toward the sky in a double – height atrium to bring in filtered south light to the interior spaces below. A sheltered outdoor living room immediately next to the garden provides the setting for multi – seasonal activities.
The Project Information:
- Project Name: Four & Four House
- Location: West Vancouver, Canada
- Project Year: 2019
- Area: 6600 ft²
- Designed by: Mcleod Bovell Modern Houses


















The Four & Four House Gallery:


















Text by the Designer: Situated on a steep waterfront lot flanked by a suburban context, the Four & Four House knits together the client’s affinity for mid-century, post-and-beam construction with contemporary adaptations. The site’s generous width with its semi-naturalized condition presented an opportunity for landscape elements to organize the sequence of the house in the form of four distinct courtyards. Clad in locally-milled yellow cedar, four massive beams frame these spaces.
Photo credit: Andrew Latreille | Source: Mcleod Bovell Modern Houses
For more information about this project; please contact the firm :
– Add: 293 Columbia St, Vancouver, BC V6A 2R5, Canada
– Tel: +1 604-723-4645
– Email: lisa@mcleodbovell.com
More Projects in Canada here:
- Sunrise Studio with Expansive Coastal Views by Bark Design Architects
- House Mesh, Integrated into Nature Designed by Caramel Architekten
- Lake Shore House on beautiful Lakeshore site by Spasm Design Architects
- The Gritted Grid House with opulence and charm nature by Gets Architects
- Windmill Ranches House in Florida by SDH Studio Architecture + Design