House Mesh, Integrated into Nature Designed by Caramel Architekten
Architecture Design of House Mesh
Description About The Project
House Mesh designed by Caramel Architekten is a stunning project that situated in a large site. For this house, the lightweight wood construction with a rear-ventilated metal façade and large – scale glass elements form the remaining outer skin surfaces. Also, the intersection of the massive terrace plateau with the edge of the terrain forms only a partial adaptation to the topography, therefore the structure rises from the terrain on the North/ West side.
Moreover, the entire construction of the house made of a lightweight timber frame construction, combined with partially visible steel construction. The floor slab in contact with the ground is of solid concrete construction and also forms the finished, polished and waxed floor surface. It also serves as a storage mass element, balancing the light roof structure. The house climate also regulated by the large green roof area, it serves as structural solar and thermal protection in the Southwest, favored by its thick vegetation layer.
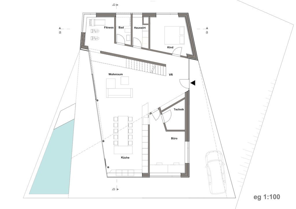
On the other hand, the heart of the house is the partly five meter high, ground – level living space, from which all rooms, the garden and the terrace plateau with the pool are accessed. As a structurally shielded space, the tent – like sleeping and resting area is located on the upper floor and connected to the roof terrace by a cut in the green roof. Rooms and surfaces flow into one another. Be it the open fireplace on three sides between the living room and the workroom, which grows out of the wall lining and allows a view through the combustion chamber into the study, or the concrete floor and the soffit of the roof, both of which continue from the inside to the outside through the frameless glass façade.
The Architecture Design Project Information:
- Project Name: House Mesh
- Location: Hagenberg im Mühlkreis, Austria
- Project Year: 2020
- Area: 205 m²
- Designed by: Caramel Architekten
ADVERTISEMENT

ADVERTISEMENT


ADVERTISEMENT

ADVERTISEMENT


ADVERTISEMENT

ADVERTISEMENT


ADVERTISEMENT

ADVERTISEMENT


ADVERTISEMENT

ADVERTISEMENT


ADVERTISEMENT

ADVERTISEMENT


ADVERTISEMENT

The House Mesh Gallery:
ADVERTISEMENT



















Text by the Architects: The main aim of the design and the client’s request was a future-oriented handling of materials and a building that integrated into the environment. A generous green roof as a cut-out and folded landscape forms the largest space-forming element of the House Mesh. Also, the lightweight timber construction with a ventilated metal facade and large glass elements form the remaining outer skin surfaces.
Photo credit: Kerstin Ordelt, Paul Eis | Source: Caramel Architekten
For more information about this project; please contact the Architecture firm :
– Add: Türkenstraße 17, 1090 Wien, Austria
– Tel: +43 1 5963490
– Email: kha@caramel.at
More Projects here:
- TKN House, a Stunning Mountain Home on Steep Site by OTP Arquitetura
- C+S House, Stunning Renovation from 1970’s Era House by AE Superlab
- MT House with Simple Lifestyle and Harmony with Nature by Urban Praxis
- An Incredible Newly Custom Built Home in Miami hits the Market for $9,800,000
- This $3,295,000 Estate Shines in Connecticut