Fondue House, Brand-new House in Australia by Castlepeake Architects
Architecture Design of Fondue House
Description About The Project
Fondue House recently designed by Castlepeake Architects, a Sydney based architectural practice with many years experience, is an elegant project. Indeed, this house suceeded to seek the inspiration from beyond its boundaries to fulfill the client’s desire for natural light and an increased connection to surroundings.
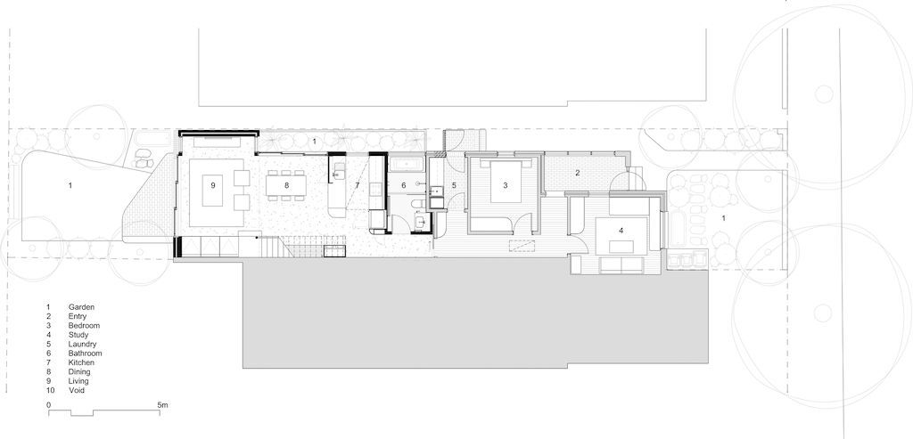
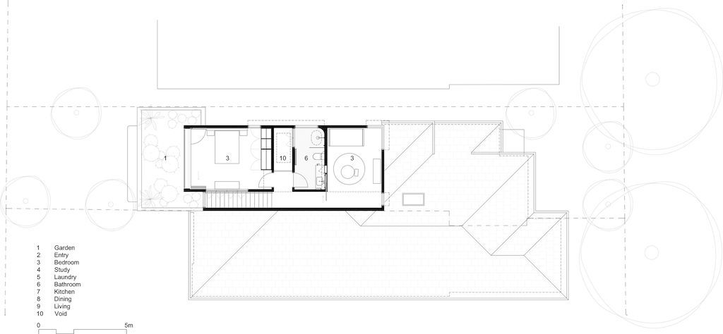
In addition to this, the sense of space within the house belies its size, achieved through the interconnection of spaces and relationship to garden areas. Also, operable shutters open onto tall voids above the stairs and kitchen, provide the opportunity for visual connection and casual interaction.
Besides, a lush garden can be found where the underutilized side passage was once located. While a roof garden off the master bedroom provides a continuous vegetated outlook into the neighboring treetops. The addition of just 4 sq/m to the ground level extends the living space from side boundary to boundary. While the rear yard and side passage gardens are visually drawn into the space.
The Architecture Design Project Information:
- Project Name: Fondue House
- Location: Marrickville, Australia
- Project Year: 2022
- Area: 140 m²
- Designed by: Castlepeake Architects
ADVERTISEMENT

ADVERTISEMENT


ADVERTISEMENT

ADVERTISEMENT


ADVERTISEMENT

ADVERTISEMENT


ADVERTISEMENT

ADVERTISEMENT


ADVERTISEMENT

ADVERTISEMENT

The Fondue House Gallery:
Text by the Architects: A small semi with a tall Northern neighbor, the existing dwelling sought inspiration from beyond its boundaries to fulfill the client’s desire for natural light and an increased connection to their surroundings. Borrowed views presented themselves from the upper level to the canopy of trees within the street and over the densely planted rear neighbors’ garden. Besides, the alignment of the stair void proves a clear line of sight extending the length of the house and drawing light to the level below.
Photo credit: Tom Ferguson| Source: Castlepeake Architects
For more information about this project; please contact the Architecture firm :
– Add: 7/136 Willoughby Rd, Crows Nest NSW 2065, Australia
– Tel: +61 2 9437 1800
– Email: info@castlepeake.com.au
More Projects in Australia here:
- Boulevard House with Views of Yarra River by Green Sheep Collective
- Gorgeous Palm Beach villa in New South Wales with idyllic views of Pittwater bay for sale
- Beachfront villa in New South Wales with Gunnamatta Bay view for sale
- Beachfront villa in New South Wales with Gunnamatta Bay view for sale
- High end beachside home by Brewster Hjorth in New South Wales for sale



