Palm House, Stunning Project in Kwazulu Natal by Metropole Architects
Architecture Design of Palm House
Description About The Project
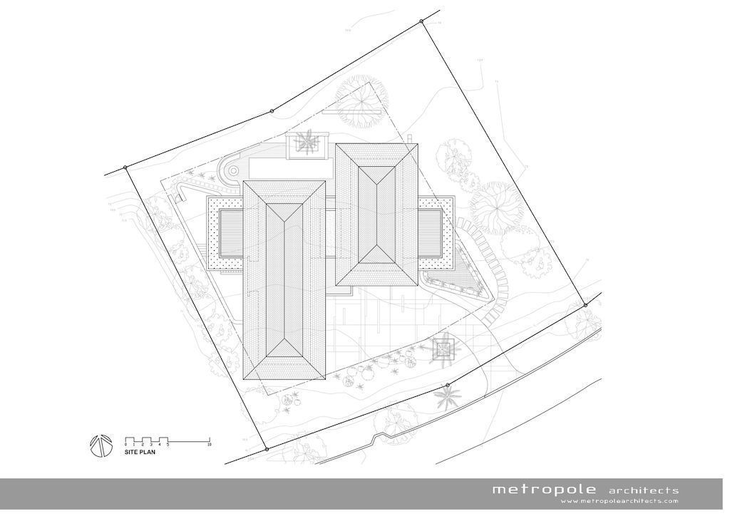
Palm House is a luxury real estate development in South Africa design by Metropole Architects. This luxury residential property project carried out as a team including Partner Tyrone Reardon as Project Architect and Chris Laird as Project Technician. The design of this house based on three rectangular forms arranged in such a way so as to create the sense of opposing movement. The first rectangular form grounded in the site and orientated on an East West axis. The 2nd and 3rd rectangular forms elevated above and positioned side by side one another in a North South axis.
Indeed, the clients were very clear about the expectations of achieving a home that presented itself as dynamic and exciting externally. Yet still addressed all the specific internal requirements in terms of space planning and room allocation. Include living room, dining room, kitchen, bedroom and bathroom. The particular orientation and characteristics of the site presented a challenge in that there was no ”back – end” to the site. Also, leaving all four elevations vying for center stage.
Hence the “back of house” services had to tastefully camouflaged behind curved stone walls and exciting structural acrobatics unfolding above. Then, with the location being a Coastal Forest Residential Estate, the potential views from the home would always be competing with existing foliage and neighboring houses. Also, this contest ultimately won by rotating the axis of the home at 45 degrees to both the road frontage and adjacent properties resulting in unobstructed views of both the ocean and golf course.
The Architecture Design Project Information:
- Project Name: Palm House
- Location: Dolphin Coast, KwaZulu – Natal, South Africa
- Project Year: 2018
- Area: 640 m²
- Designed by: Metropole Architects
ADVERTISEMENT

ADVERTISEMENT


ADVERTISEMENT

ADVERTISEMENT


ADVERTISEMENT

ADVERTISEMENT


ADVERTISEMENT

ADVERTISEMENT


ADVERTISEMENT

ADVERTISEMENT


ADVERTISEMENT

ADVERTISEMENT


ADVERTISEMENT

ADVERTISEMENT


ADVERTISEMENT

ADVERTISEMENT


ADVERTISEMENT

ADVERTISEMENT


ADVERTISEMENT

The Palm House Gallery:
ADVERTISEMENT
Text by the Architects: The design based on three rectangular forms arranged in such a way so as to create the sense of opposing movement. The first rectangular form grounded in the site and orientated on an East – West axis. The 2nd and 3rd rectangular forms elevated above and positioned side by side one another in a North – South axis. One heading with purpose towards the ocean. With the other having its sight set on the golf course fairway in the opposite direction.
Photo credit: Alexis Diack Architecture & Design Photography| Source: Metropole Architects
For more information about this project; please contact the Architecture firm :
– Add: 23 Wanless Rd, Glenmore, Durban, 4001, South Africa
– Tel: +27 31 303 7858
– Email: info@metropolearchitects.com
More Projects in South Africa here:
- Camps Bay House designed by Malan Vorster Architecture Interior Design
- House M, a Stunning Truly African Home by Elphick Proome Architects
- Pool Penthouse, Glamorous urban home on slope by Jenny Mills Architects
- OVD 919, Mountainside villa with Spectacular Cape Town views by SAOTA
- Kloof 145 House with Spectacular Ocean and Mountain Views by SAOTA





