Three Elements House, A Compact Middle-rise Villa by Kerimov Architects
Architecture Design of Three Elements House
Description About The Project
Three Elements House designed by Kerimov Architects is an impressive project which sits on the banks of the river, on a small site surrounded by trees that need to be preserved. The main goal is to design a compact middle-rise building within a given area that is so-scaled to the environment, not bulky, and also easy to perceive.
Indeed, there are three elements embodied in the architecture of the house: nature (forest), water, and the city. The used materials, such as wood and architectural concrete, correlate with the natural and urban context. In addition to this, the visible architectonics of the villa expressed in the rhythmic alternation of transparent and impenetrable, dark and light, verticals and horizontals, the ratio of volumes and heights.
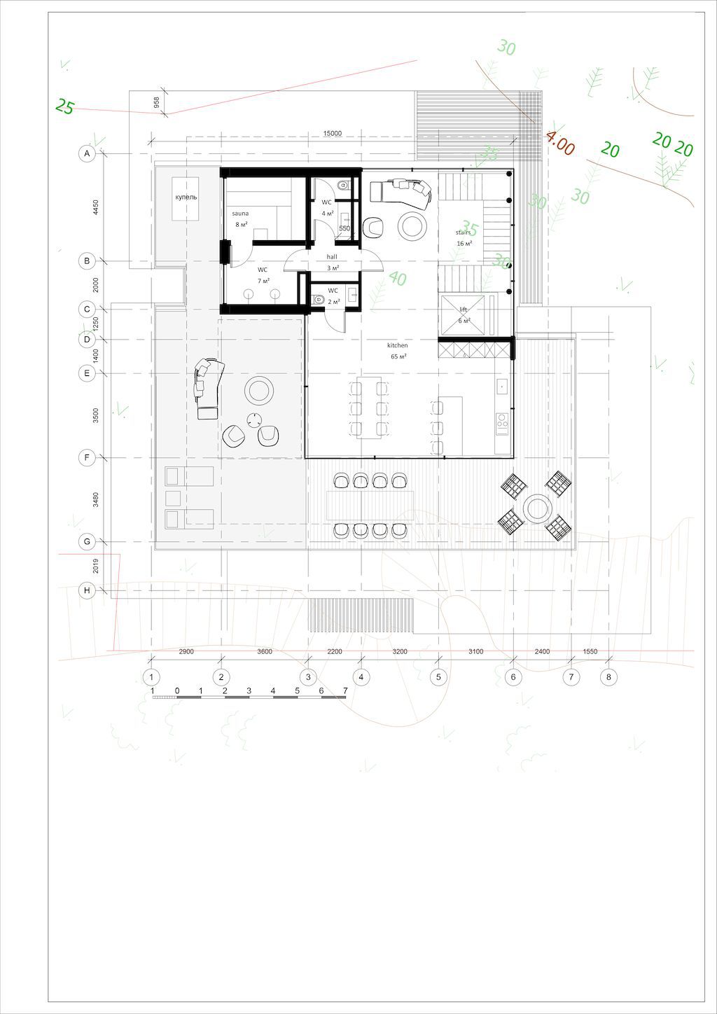
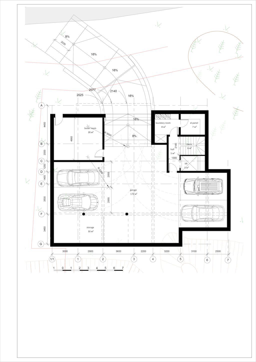
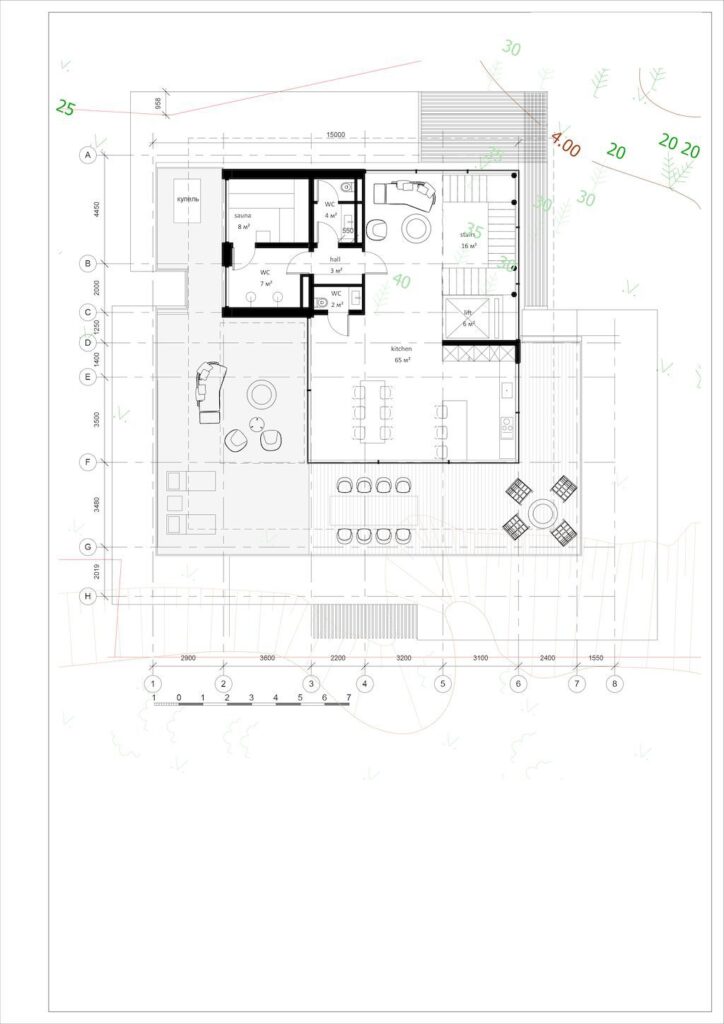
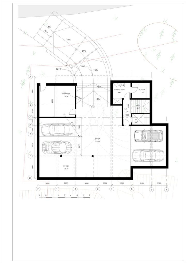
On the -1 floor, there is a garage, a laundry room, and technical rooms. The first floor is for a public area: there is a kitchen, a living room, a private living room so-called salon, a room for staff, an office, guest bathrooms, and a dressing room. Besides, the second floor is more private, with a master bedroom, an office, two kids’/guest rooms, bathrooms, a dressing room, and a large common hall. On the other hand, on the third floor, there is a second kitchen and a sauna with access to the terrace. Each level has its own viewpoints on the surrounding landscape.
The Architecture Design Project Information:
- Project Name: Three Elements House
- Location: Jurmala, Latvia
- Area: 780 sq. m
- Designed by: Kerimov Architects
ADVERTISEMENT

ADVERTISEMENT


ADVERTISEMENT

ADVERTISEMENT


ADVERTISEMENT

ADVERTISEMENT


ADVERTISEMENT

ADVERTISEMENT


ADVERTISEMENT

ADVERTISEMENT


ADVERTISEMENT

ADVERTISEMENT


ADVERTISEMENT

ADVERTISEMENT


The Three Elements House Gallery:
ADVERTISEMENT






















Text by the Architects: A three-story villa named Three Elements House of 780 sq. m is located in Jurmala, on the banks of the river, on a fairly small site surrounded by trees that need to be preserved as much as possible. The task was to make a compact middle-rise building within a given area easy to perceive, so-scaled to the environment, and not bulky.
Photo credit: | Source: Kerimov Architects
For more information about this project; please contact the Architecture firm :
– Add: Moscow, Russia
– Tel: +7 (495) 748-92-28
– Email: moscow@kerimov.su/ prkerimovarch@gmail.com
More Projects here:
- Contour House, spacious & comfort home by Archimatrix India Associates
- aMa House with gallery space to show art collection by XTEN Architecture
- Esmeralda House with Emerald Mineral inspiration by Cazú Zegers
- Bona Vista House with a Warm and Cozy Spaces by Architect Prineas
- Wallaby Hill House Reflects the Outdoor Lifestyle in Australia by Avver