Cata vento House, for Tranquility and Nature Connection by Equipe Lamas
Architecture Design of Cata-vento House
Description About The Project
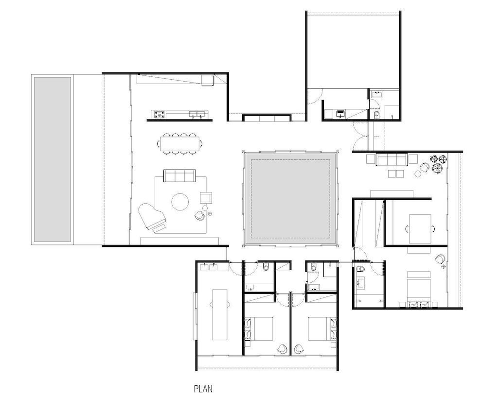
Cata vento House designed by Equipe Lamas is an elegant home for a couple who seek the privacy, tranquility, yet still connection with the nature. This house built with low-cost materials and construction solutions. Also, with mixed structures, the metal beams support concrete pillars. The external masonry walls painted in light earth color and dialogue chromatically with the sky. While the inner walls are white to highlight works of art and furniture. The cementitious floor coats the entire house, except in the wet areas, which replaced by gray granite. Besides, the naval plywood, used in the lining, finds continuity in the kitchen furniture and on the shelves designed to accommodate the book collection of the residents.
These “boxes” sector the needs program and different frame views of the landscape: The first block houses the garage and service areas; the second, the TV room, office, and Master suite; in the third, two bedrooms, a shared bathroom, toilet, and the atelier. Lastly, the volume of the living/ dining room and kitchen fully integrated into the balcony by sliding doors. Besides, solar panels heat the water and pool all year round. For its interior, a playful spirit, with pieces designed by architect Samuel Lamas and masters of national and international design.
On the other hand, to honor the “ancient residents”, a native tree ‘ ipê’ that inhabited the construction site, was replanted as a sculpture in the center of the courtyard. Natural light and air penetrate all directions thanks to the extensive full-height glazing with tippers. The courtyard filled with paths, gardens, and water, which besides humidifying the house, reflects the sky and projects its movements inside.
The Architecture Design Project Information:
- Project Name: Cata vento House
- Location: Brasília, Brazil
- Project Year: 2022
- Area: 375 m²
- Designed by: Equipe Lamas








Also, the native tree plant and replanted as a sculpture in the center of the courtyard of this Cata vento House.



















The Cata-vento House Gallery:




























Text by the Architects: This simple Cata vento House implanted as a flower in the arid landscape of the Cerrado Biome, the Brazilian savannah. A couple seeking tranquility and connection with nature commissioned this urban refuge located 15 minutes from the center of Brasilia. The 2000 m2 plot made it possible to spread 375 m2 of construction through the land. Its volumetry consists of four loose volumes, drawn on a mesh of square modules and rotated around an uncovered internal courtyard, through which the volumes interconnected.
Photo credit: Joana França | Source: Equipe Lamas
For more information about this project; please contact the Architecture firm :
– Add: St. de Habitações Individuais Sul QI 15 bloco F Sobreloja – Lago Sul, Brasília – DF, 71600-730, Brazil
– Tel: +55 61 3364-0900
– Email: design@equipelamas.com
More Projects in Brazil here:
- House Z, a unique and functional Home in Brazil by Estúdio LF Arquitetura
- Beach House Lagos Park 401 House in Brazil by BRZL Brazil Arquitetos
- AK House with Minimalism Concept Design by Aguirre Arquitetura
- House Guaeca II Located in a Green Area in Brazil by AMZ Arquitetos
- Green House, Stunning Brand-new Home in Brazil by ES Arquitetura