House Paap, Stunning Renovation by Architecten De Bruyn bvba
Architecture Design of House Paap
Description About The Project
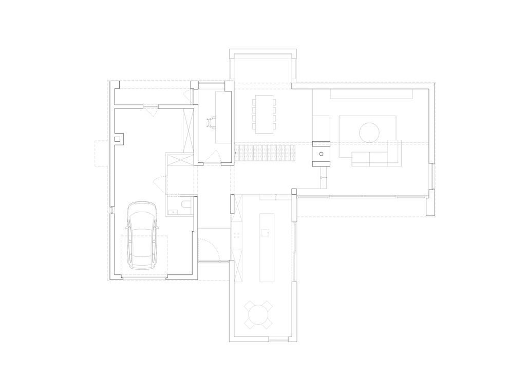
House Paap designed by Architecten De Bruyn is an impressive project which renovated and extend a detached single – family house. Indeed, the architect opted to introduce two well – chosen extensions to enlarge the interior space and divide the exterior space as required by the client. The extensions designed as light, timber-frame constructions. Besides, the exterior materialization of the facades and roof of these volumes is the result of an extensive design-research.
The first extension, at the front facade, contains a kitchen area on ground level and a master bedroom directly above. This volume was specifically designed with a gently sloping roof to match the existing volumetric. In addition to this, the enlarged kitchen area on ground floor directly linked to the nearby terrace area. The difference in level with the dining area gives the kitchen an autonomy. The master bedroom on the first floor contains both a dressing area as well as a bathroom. Both are an integral part of the open master bedroom.
The second extension, at the back facade provides a subtle, small – scale extension of the dining area in order to allow more light to penetrate the house without being directly overlooked by neighbors. Against the new exterior facade, a steel bookcase designed. Also, the two new annexes form together with the existing living areas and their height differences an interesting flow of spaces. They form divided spaces without being physically separated from each other.
The Architecture Design Project Information:
- Project Name: House Paap
- Location: Beersel, Belgium
- Project Year: 2019
- Area: 240 m²
- Designed by: Architecten De Bruyn bvba
ADVERTISEMENT

ADVERTISEMENT


ADVERTISEMENT

ADVERTISEMENT


ADVERTISEMENT

ADVERTISEMENT


ADVERTISEMENT

ADVERTISEMENT


ADVERTISEMENT

ADVERTISEMENT


ADVERTISEMENT

ADVERTISEMENT


ADVERTISEMENT

ADVERTISEMENT


ADVERTISEMENT

ADVERTISEMENT


ADVERTISEMENT

ADVERTISEMENT


ADVERTISEMENT

The House Paap Gallery:
ADVERTISEMENT
Text by the Architects: House Paap, located on the edge of the beautiful Kluisbos in Huizingen (Belgium), concerns the necessary total renovation and extension of a detached single-family house with an outspoken sixties atmosphere.
Photo credit: Tim Van de Velde| Source: Architecten De Bruyn bvba
For more information about this project; please contact the Architecture firm :
– Add: Posthoornstraat 43, 9300 Aalst, Belgium
– Tel: +32 53 77 77 62
– Email: info@architectendebruyn.be
More Projects here:
- Kite house, Greek island home celebrate minimalist life by React Architects
- C$3,600,000 Stunning Villa in Pitt Meadows Will Leave You Feeling Inspired
- LO House, Create Harmony of Nature by Dado Castello Branco Arquitetura
- Live Large in This Beautiful Farmland House in Langley That’s Asking C$5,399,000
- Remodeled one story house in Nevada with private front courtyard sells for $3,499,000















