Hover House with rustic & brutal of concrete Design by Pranala Associates
Architecture Design of Hover House
Description About The Project
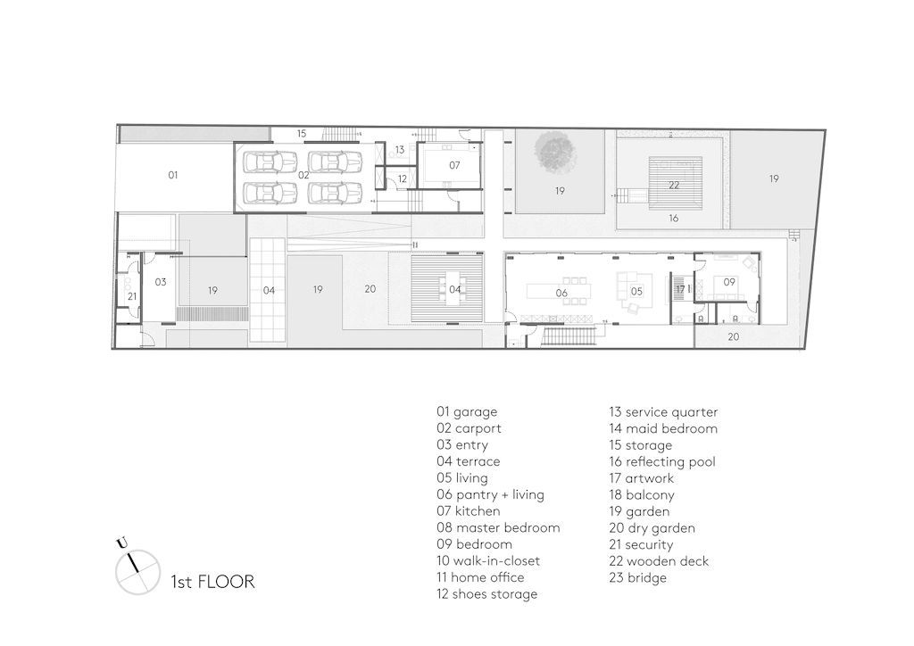
Hover House designed by Pranala Associates is a unique design which show that concrete which usually seems heavy can be designed in such a way that it looks light. At the entrance of the house, there is a cogon grass garden that compliments the architecture which people can enjoy. Also, Hover House has 3 masses which are divided based on their respective functions.
Once inside, there is an intersection that divides the entrance, the main living quarter, the service area, the front garden, and the back garden. So it feels there is a separation but still remains in one unit. The house itself preceded by a semi-open foyer, framing a striking elevational view of the main building that houses the main living quarters. Including living room, dining room, kitchen, bedroom and bathroom.
The prevailing material utilized throughout the project exposed concrete with a meticulously executed wood grain texture generated through the use of ‘heavy grained’ pine wood (Jati Belanda). In accordance with the theme, ‘hovering house’, the architect team consistently applied the theme not only in terms of the exterior but also interior and lighting. Thus, the entire gravity defying experience can be felt not only from the outside but also when the users are inside the home.
The Architecture Design Project Information:
- Project Name: Hover House
- Location: Bandung, West Java, Indonesia
- Project Year: 2020
- Area: 760 m²
- Designed by: Pranala Associates
ADVERTISEMENT

ADVERTISEMENT


ADVERTISEMENT

ADVERTISEMENT


ADVERTISEMENT

ADVERTISEMENT


ADVERTISEMENT

ADVERTISEMENT


ADVERTISEMENT

ADVERTISEMENT


ADVERTISEMENT

ADVERTISEMENT


ADVERTISEMENT

ADVERTISEMENT


ADVERTISEMENT

ADVERTISEMENT


The Hover House Gallery:
ADVERTISEMENT
None
Text by the Architects: Just a step away from the entrance, visitors will be taken on a journey to enjoy the architecture of the house. Located in Bandung, Indonesia, Hover House presents architectural themes that experiment with gravity. Indeed, from the beginning, the architecture of this house wanted to show that concrete which usually seems heavy can be designed in such a way that it looks light.
Photo credit: Mario Wibowo | Source: Pranala Associates
For more information about this project; please contact the Architecture firm :
– Add: Jl. Cipedes Tengah No.98n, Cipedes, Kec. Sukajadi, Kota Bandung, Jawa Barat 40163, Indonesia
– Tel: +62 22 82065905
– Facebook: https://vi-vn.facebook.com/pranalaassociates/
More Projects in Indonesia here:
- Villa WRK in Kabupaten Badung, Indonesia by Parametr Indonesia
- Golf residence, warm intimate home with golf field views by Gets Architects
- Rubic JGC residence, modern home combine feng shui by Gets Architects
- Modern J House, a Villa with Impressive Corner Plot by y0 Design Architect
- Awrawikara House, the riches of Life and Luxuries of Nature by Andramatin




