Ode to Nature House to Ensure Privacy in Poland by Milwicz Architekci
Architecture Design of Ode to Nature House
Description About The Project
Ode to Nature House designed by Milwicz Architekci is an impressive detached house in a quiet area surrounded by a forest. The main design aim of this house is creating a space to commune with natural, yet still ensuring the privacy for the owner.
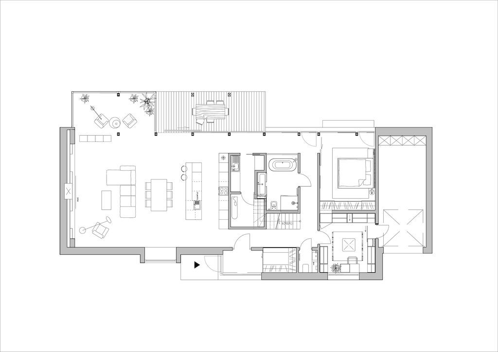
One of the design aims was to provide light displays in the interior throughout the day. Hence, three main openings in the living area fulfill this task: a window seat – from the east; a triangular gable window – from the South, placed above the line of sight, above a stone fireplace wall. As a result, the effect is an interior filled with light, without invading the privacy despite the fact that another building is located in close vicinity of the house.
The heart of the house is a spacious living room and dining room, with glass lamps above the table, which were the dream of the Investors. Besides, the extension of the living room, namely the coffee room became a particularly secluded and inviting place in the house. It is a well-lit space conducive to reading a book or exercising on a mat. Also, the extension of this room’s roof allowed to create of a terrace, which has the same ceiling as the coffee room for optical prolongation and blending of the border between the outer and inner relaxation zone.
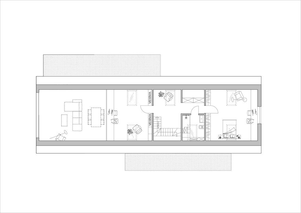
There is also a lot of workspace inside the house. It located on the mezzanine, from which once can observe the daily life of the residents, isolate the work and living area at the same time. In addition to this, the minimalist façade of the building has been partially covered with natural stone, thus corresponding with the fireplace wall. The remaining part covered with the same material as the roof – charcoal – colored sheeting.
The Architecture Design Project Information:
- Project Name: Ode to Nature House
- Location: Poznan. Poland
- Project Year: 2022
- Area: 155 m²
- Designed by: Milwicz Architekci






















The Ode to Nature House Gallery:
Text by the Architects: The detached house was designed near Poznań in a quiet area surrounded by a forest. The main design aim was to create a simple longitudinal body that would separate household members from the street and open onto the garden, ensuring privacy. From the garden, there is a view of the beautiful surrounding greenery from the 22-meter string of windows. A large amount of windows also poses a challenge, which is an overheating of the building. However, in the case of this house, the deciduous trees solve this problem. In the summertime, they form a barrier to the sunlight and during winter, after losing leaves, they allow free access.
Photo credit: Przemysław Turlej| Source: Milwicz Architekci
For more information about this project; please contact the Architecture firm :
– Add: 27 Grudnia 9A/4, 61-737 Poznań, Poland
– Tel: +48 661 332 322
– Email: biuro@m-a.pl
More Projects here:
- Wind House, an unique Villa Design shaped by nature by Mobius Architekci
- B House with tropical mixed with rustic Balinese design by Gohte Architects
- House U, Stunning rectangular shape House open to the sky by Atelier 56S
- S5 House, The House with a Ribbon Envelope by Raz Melamed Architect
- C+S House, Stunning Renovation from 1970’s Era House by AE Superlab



