Ventura Hillside Home, Stunning White Horizontal Blocks by DARX Studio
Architecture Design of Ventura Hillside Home
Description About The Project
Ventura Hillside Home designed by DARX Studio nested into the hill with the spectacular views of the nature. Indeed, the main consideration of the design was how the structure would respond to the terrain and capture the canyon views of the Simi Hills. As a result, the house elongates itself parallel to the view. Thus creating panoramic views into Bell Canyon toward the East while hiding itself from the two neighboring buildings on either side. By siting the mass of the building along the Eastern edge of the slope, it opened up a large garden backyard between the house and the descending slope.
In addition to this, a reoccurring theme of the design is that vantage points extend laterally from the interior spaces towards the courtyard, the backyard garden, and the canyon beyond. The house takes advantage of the horizontal nature of human vision and uses it to create and capture broad views.
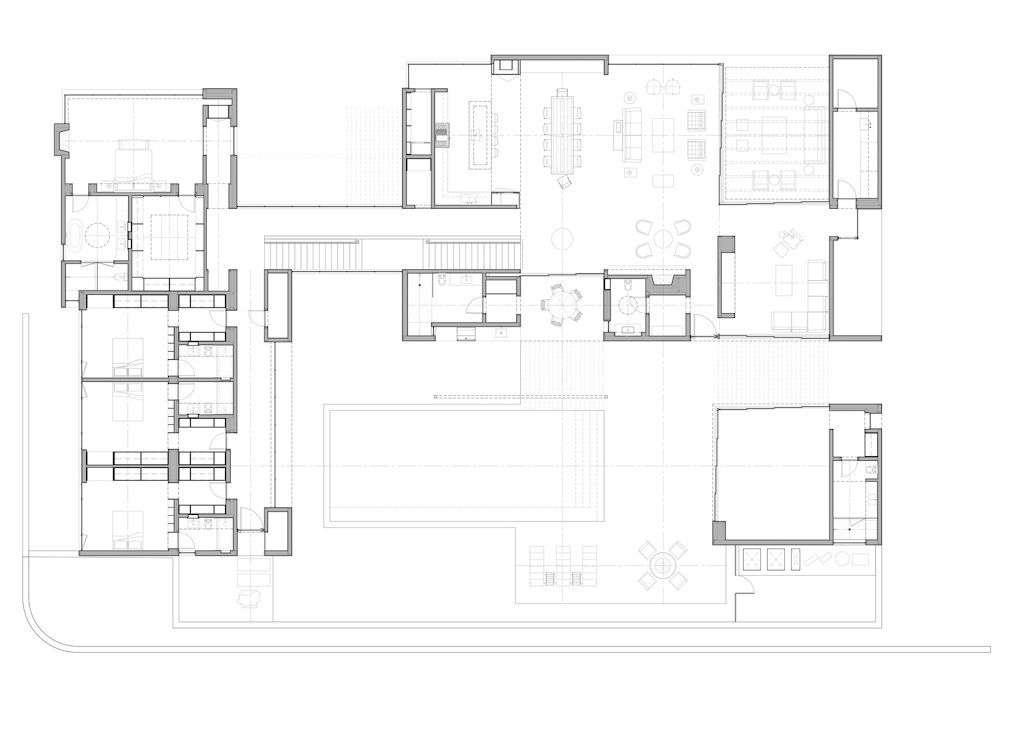
The lower level of the house is carved into the hillside with a garage, media room, and entry hall off the court. This allows the house to function as a predominantly single-level house above. Also, takes advantage of the larger flat pad with a backyard garden. Besides, the upper-level bridge serves to divide the house programmatically into two hierarchical areas. With the public social spaces to the North and the private bedroom wing to the South. The kitchen, dining, and living room extend to an interior courtyard that faces the view. And allows for the view to be experienced both indoors and outdoors. Also, the courtyard view extends in the opposite direction of the view with site lines continuing into the den and an exterior pool cabana beyond.
The Architecture Design Project Information:
- Project Name: Ventura Hillside Home
- Location: Bell Canyon, California, United States
- Project Year: 2020
- Area: 6285 ft²
- Designed by: DARX Studio
ADVERTISEMENT

ADVERTISEMENT


ADVERTISEMENT

ADVERTISEMENT


ADVERTISEMENT

ADVERTISEMENT


ADVERTISEMENT

ADVERTISEMENT


ADVERTISEMENT

ADVERTISEMENT


ADVERTISEMENT

ADVERTISEMENT


The Ventura Hillside Home Gallery:
ADVERTISEMENT
Text by the Architects: This project is located within the gated equestrian community of Bell Canyon, in eastern Ventura County California. Indeed, the house nestled midway up a steep hillside with views capturing the rolling hills and mature trees of Bell Canyon below. The topography of the lot had a steep heel and toe, while the middle portion of the lot was more moderately sloped, creating a natural place to locate a building pad.
Photo credit: Oren Dothan| Source: DARX Studio
For more information about this project; please contact the Architecture firm :
– Add: 11500 Tennessee AVE. STE. 423 Los Angeles CA 90064
– Tel: +1.310.435.3066
– Email: Info@darxstudio.Com
More Houses in United States here:
- Spectacular Design Concept of Wallace Mansion by CLR Design Group
- Emerald Modern Home Concept in Laguna Beach by David Hiller Studio
- Woodland House brings the nature beauty by ALTUS Architecture + Design
- On The Hill House, U-Shaped House Facing NYC by Narofsky Architecture
- Incredible home in Arizona built by Norton Luxury Homes sells for $6,471,522
