Eaves House, impressive Home by McLeod Bovell Modern Houses
Design of Eaves House
Description About The Project
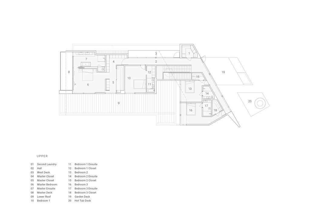
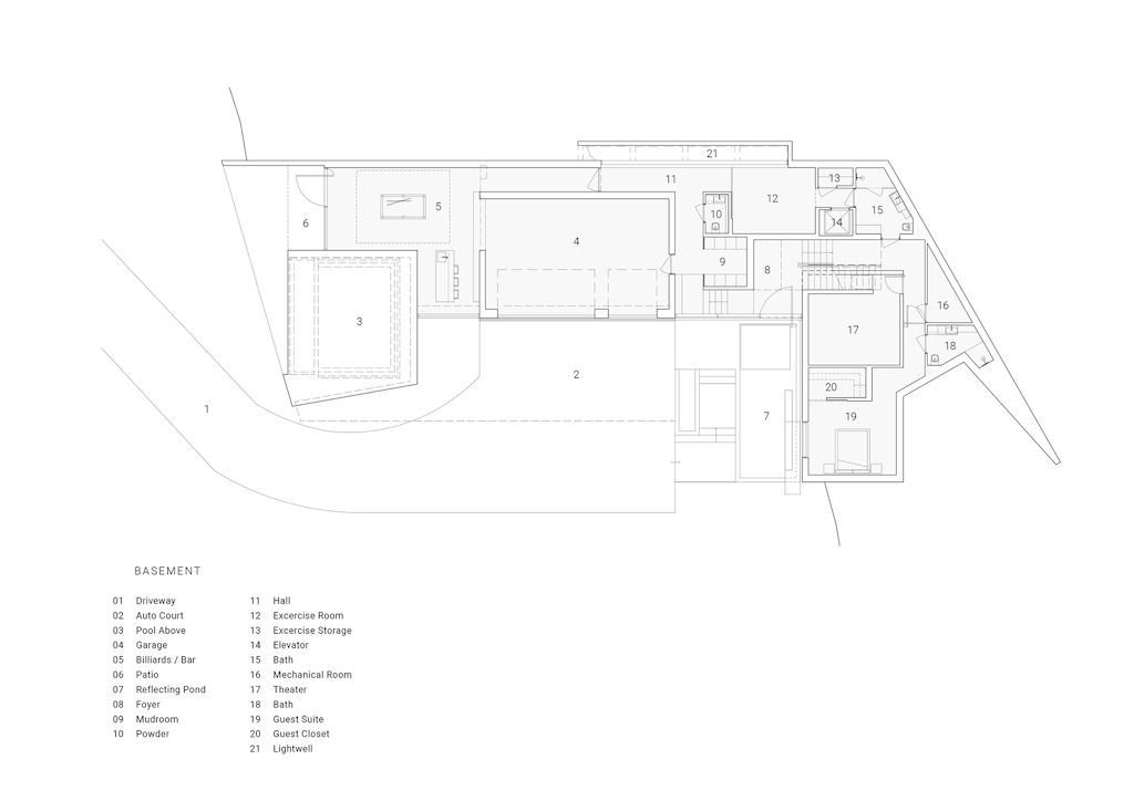
Eaves House designed by McLeod Bovell Modern Houses that offers spectacular views to English Bay, the Vancouver skyline, and the Stanley Park peninsula are spread across the horizon to the South and South-East. This house formally comprised of a hovering concrete plinth at the main floor which sits underneath two broad eaves. Also, the plinth forms a new “ground” in the air which obscures a large auto – court at the basement floor and creates privacy by masking the road and windows of adjacent houses below. The two extruded roof masses above similarly serve to edit out the suburban foreground while framing and focusing vistas toward the water.
Moreover, the program at the main and upper floor stretched along the length of the site, in parallel with the expansive east-flanking outdoor spaces which allow indoors spaces to expand outward. Front to back, the house steps out of its own way in a sequence of “views behind view” that creates an unfolding cinematic experience when moving between spaces.
On the other hand, the design strategy results in an unconventional street-level elevation that. Due to the low angle of view on the approach — largely suppresses the conventional reading of walls, floors, and windows. Also, the designer take advantage from the location, brings the views to outside from every corner of the house such as living room, dining room, bedroom. All things make this house become an ideal home to live and enjoy the life.
The Project Information:
- Project Name: Eaves House
- Location: West Vancouver, Canada
- Project Year: 2021
- Area: 8085 ft²
- Designed by: McLeod Bovell Modern Houses
ADVERTISEMENT

ADVERTISEMENT


ADVERTISEMENT

ADVERTISEMENT


ADVERTISEMENT

ADVERTISEMENT


ADVERTISEMENT

ADVERTISEMENT


ADVERTISEMENT

ADVERTISEMENT


ADVERTISEMENT

ADVERTISEMENT


The Eaves House Gallery:
ADVERTISEMENT


















Text by the Designer: The Eaves House exists at the interface between a residential neighborhood below and an undeveloped forested ravine above. The long and narrow cross-pitched site is asymmetrical with a pan-handle shape. Views to English Bay, the Vancouver skyline, and the Stanley Park peninsula are spread across the horizon to the south and south-east. Neighborhood development in this area is regulated by specific design guidelines that encourage roof forms rather than strong volumetric expression.
Photo credit: Ema Peter | Source: McLeod Bovell Modern Houses
For more information about this project; please contact the firm :
– Add: 293 Columbia St, Vancouver, BC V6A 2R5, Canada
– Tel: +1 604-723-4645
– Email: lisa@mcleodbovell.com
More Projects in Canada here:
- Sunrise Studio with Expansive Coastal Views by Bark Design Architects
- House Mesh, Integrated into Nature Designed by Caramel Architekten
- Lake Shore House on beautiful Lakeshore site by Spasm Design Architects
- The Gritted Grid House with opulence and charm nature by Gets Architects
- Windmill Ranches House in Florida by SDH Studio Architecture + Design