Outside In House, seamlessly integrates with nature by HYLA Architects
Architecture Design of Outside In House
Description About The Project
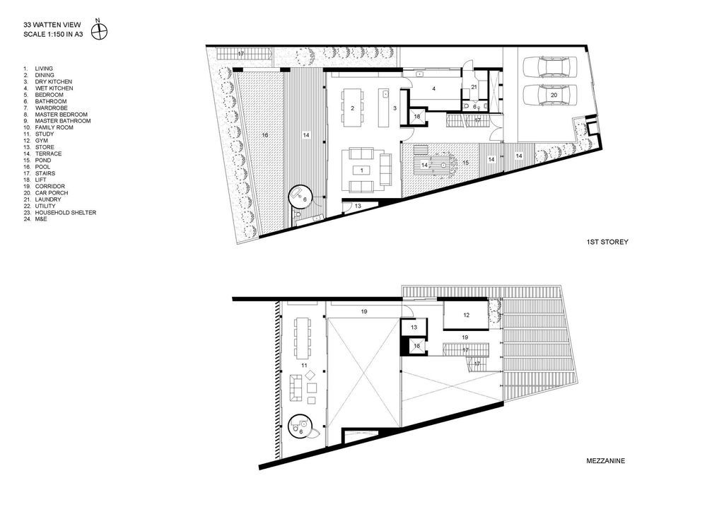
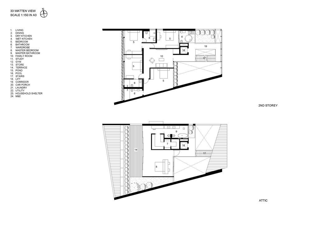
Outside In House is a stunning home designed by HYLA Architects for a family of five in Singapore. The house situated on high ground, with the rear facing West and provide a beautiful view, while the front faces East on a typical residential street. The design strategy was to place the living areas and main bedrooms facing West to take advantage of the view. These spaces have deep overhangs or operable timber screens to protect them from the afternoon sun.
In addition to this, in front of the house, there is a 15-meter-high forecourt with a koi pond and feature tree that acts as a buffer to the public street frontage. This space covered but outdoors, with openings on various sides. It is private from the outside world yet serves as the public space for the house where most of the circulation takes place. It enclosed yet permanently and effectively ventilated.
Moreover, at the rear of the house, the pool deck sheltered by the mezzanine study above which acts as the shield for the double-volume living–dining space. This study protected by a rotating timber screen with each blade made up of 8 pieces of timber. Throughout the house, nature is introduced, and the duality of the spaces is emphasized. The floor is suspended from the top floor via a pair of deep beams, which also serve as a planter for the master bedroom. The Outside In House blurs the boundaries between inside and outside, making it an architectural masterpiece that seamlessly integrates with nature.
The Architecture Design Project Information:
- Project Name: Outside In House
- Location: Singapore
- Project Year: 2021
- Area: 778 m²
- Designed by: HYLA Architects
ADVERTISEMENT

ADVERTISEMENT


ADVERTISEMENT

ADVERTISEMENT


ADVERTISEMENT

ADVERTISEMENT


ADVERTISEMENT

ADVERTISEMENT


ADVERTISEMENT

ADVERTISEMENT


ADVERTISEMENT

The Outside In House Gallery:
ADVERTISEMENT
















Text by the Architects: This house for a family of five sits on high ground with the rear having the view but facing west. The front faces east on a typical residential street. The design strategy was to place the living areas as well as the main bedrooms facing west to take advantage of the view. These spaces have deep overhangs or operable timber screens to protect them from the afternoon sun.
Photo credit: Derek Swalwell | Source: HYLA Architects
For more information about this project; please contact the Architecture firm :
– Add: 47 Ann Siang Rd, Singapore 069720
– Tel: +65 6324 2488
– Email: admin@hyla.com.sg
More Projects in Singapore here:
- Hill Terrace House, Stunning 3-storey Home in Singapore by Atelier M+A
- 3ASH House express masculine aesthetic in Singapore by Czarl Architects
- Chord House, a Unique Design with Curved Courtyard by Ming Architects
- Green Revelation House Enveloped by Lush Gardens by HYLA Architects
- Merryn Road Tropical Home in Singapore by Aamer Architects