Pi House Combine Western design & Vietnam tradition by D&P Associates
Architecture Design of Pi House
Description About The Project
Pi House designed by D&P Associates for a French gentleman who has lived and worked in Vietnam for nearly 30 years. He has a deep love and a great passion for Vietnamese traditional art and culture. Therefore, thishouse is a beautiful combination of modern Western architecture and the traditional beauty of Vietnam as desired by the owner.
The House is inspired by Trinh Tuong House (Pise Wall). It is a unique architectural identity of ethnic groups: Mong, Ha Nhi, Tay, Dao Tien,…living in northern mountainous provinces of Vietnam (HaGiang, Lao Cai, Lai Chau, Lang Son, Cao Bang,..). Also, the pise wall constructed completely by hand by compressing earth to be an even, flat cubic shape, nonsteel frame but very safe and steady.
Moreover, by creating a new arrangement of rustic bricks, the designer brings a modern, elegant, and deluxe beauty to the interior of the house. The House is on the Red River’s side, which has many historical and cultural values. The river has witnessed and contributed to the thousands of years of history of formation and development of the capital: Thang Long – Dong Do – Hanoi.
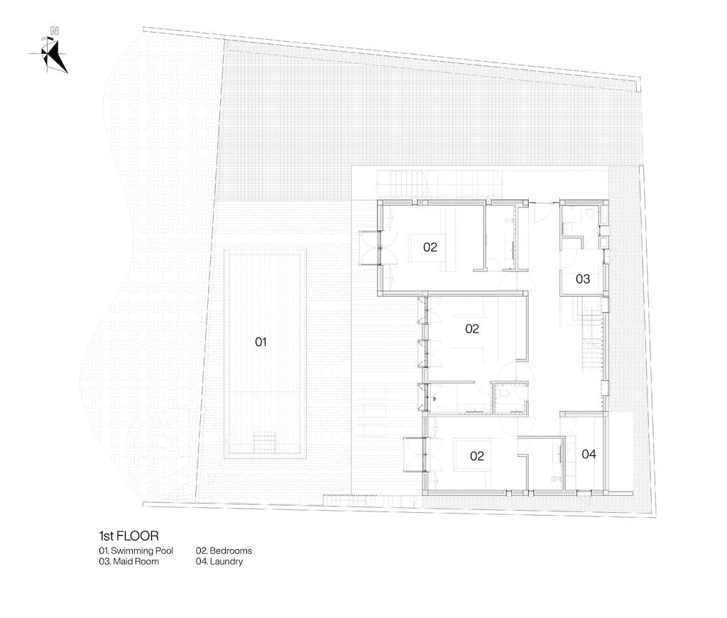
Taking advantage of the prime location overlooking the Red River and Long Bien Bridge, the house is designed with many large transparent glass windows in French modern architecture. Which filled the house with natural light in the daytime and airy in the nighttime. Hence, homeowners can enjoy a view overlooking the Red River without being obstructed when surrounded by a cool natural landscape. The ground floor designed to be a relaxing space for the homeowner with a pool in the front. In addition to this, the 1st floor is an area for joint family activities and receiving guests. The 2nd floor is the private space for each family member.
The Architecture Design Project Information:
- Project Name: Pi House
- Location: Ngoc Thuy, Long Bien, Hanoi, Vietnam
- Project Year: 2021
- Area: 640 m²
- Designed by: D&P Associates
ADVERTISEMENT

ADVERTISEMENT


ADVERTISEMENT

ADVERTISEMENT


ADVERTISEMENT

ADVERTISEMENT


ADVERTISEMENT

ADVERTISEMENT


ADVERTISEMENT

ADVERTISEMENT


ADVERTISEMENT

ADVERTISEMENT


ADVERTISEMENT

ADVERTISEMENT


ADVERTISEMENT

ADVERTISEMENT


ADVERTISEMENT

ADVERTISEMENT


ADVERTISEMENT

ADVERTISEMENT


ADVERTISEMENT

ADVERTISEMENT



The Pi House Gallery:


































Text by the Architects: FVA named this interesting housing project Pi House because the whole house looks like from a distance Pi Archimedes constant in geometry. And the biggest inspiration to make the house is Pise Wall. Indeed, the design concept was inspired by the owner of the house – a French gentleman who has lived and worked in Vietnam for nearly 30 years. He has a deep love and a great passion for Vietnamese traditional art and culture. Hence, the house is a beautiful combination of modern Western architecture and the traditional beauty of Vietnam as desired by the owner.
Photo credit: Hiroyuki Oki | Source: D&P Associates
For more information about this project; please contact the Architecture firm :
– Add: 4/40 Xuan Dieu, Tay Ho, Hanoi, Vietnam
– Email: marketing@d8p.archi
More Projects in Vietnam here:
- Tropical Modern Villa in Ho Chi Minh city by Vaco Design
- Splendid Oceaniques Villas In Binh Thuan, Vietnam by MM++ Architects
- Outstanding Coastal Stone House in Vietnam by MM++ Architects
- The Drawers House in Vietnam by MIA Design Studio
- Small House 02, Stunning minimalist and cozy 4-level house by 90odesign