Roxbury House Blends of Art and Architect by Desai Chia Architecture
Architecture Design of Roxbury House
Description About The Project
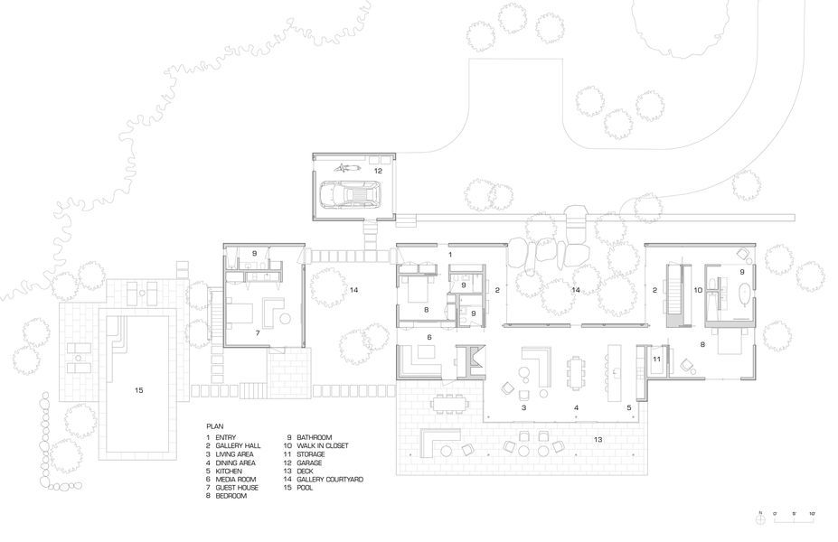
Desai Chia Architecture designed Roxbury House to capitalize on the natural ventilation provided by prevailing winds and minimize the impact on the 12-acre property by placing it uphill and at the edge of the site. The art gallery owners who commissioned the house wanted the flexibility to use it as an extension of their NYC gallery. While also leaving portions of the site open for outdoor installations. The architects drew inspiration from Alexander Calder’s estate, which featured a rolling meadow that served as an outdoor workshop for his sculptures.
Indeed, this house integrates indoor and outdoor spaces with different scales and long axial views that link rooms through layers of materials and light, culminating in distant views of the landscape. Native birch trees are incorporated into the courtyards, connecting the surrounding forest to the art experience, while the hallways double as gallery walls, framed by floor – to – ceiling windows that overlook the courtyards.
Also, to ensure the facade is resistant to rot, bugs and maintenance – free, the exterior of the house is clad in “shou sugi ban,” a traditional Japanese method of charring wood. Inside, the shou sugi ban wood walls and ceilings have a lighter level of charring. That provides a soothing color and texture to the vaulted spaces. Overall, Roxbury House blends art and landscape in intimate and broad moments.
The Architecture Design Project Information:
- Project Name: Roxbury House
- Location: Roxbury, United States
- Project Year: 2021
- Area: 4000 ft²
- Designed by: Desai Chia Architecture
ADVERTISEMENT

ADVERTISEMENT


ADVERTISEMENT

ADVERTISEMENT


ADVERTISEMENT

ADVERTISEMENT


ADVERTISEMENT

ADVERTISEMENT


ADVERTISEMENT

ADVERTISEMENT

The Roxbury House Gallery:














Text by the Architects: The Roxbury House marries art and landscape in intimate and broad moments. The house positioned uphill and on the edge of the 12-acre property to strategically take advantage of prevailing winds for natural ventilation and to minimize site disturbance. Also, allow the existing open meadow and forest to support local wildlife and native vegetation. In addition to this, the undulating roofs and their deep overhangs simultaneously draw in sunlight at different times of the day and frame landscape views while also reducing direct glare and solar heat gain. Besides, rainwater management – through a series of rain gardens and retention ponds – mitigate erosion along the steep terrain.
Photo credit: Paul Warchol | Source: Desai Chia Architecture
For more information about this project; please contact the Architecture firm :
– Add: 3 W 18th St 6th floor, New York, NY 10011, New York
– Tel: +1 212-366-9630
– Email: info@desaichia.com
More Projects in United States here:
- Stunning Estate with Deeded Beach Access Listed at $26.7 Million in Naples, Florida
- Woodland House brings the nature beauty by ALTUS Architecture + Design
- On The Hill House, U-Shaped House Facing NYC by Narofsky Architecture
- Incredible home in Arizona built by Norton Luxury Homes sells for $6,471,522
- Emerald Modern Home Concept in Laguna Beach by David Hiller Studio