Impeccable Design of 605 Cornish House by Brett Farrow Architect
Impeccable Design of 605 Cornish House
Description About The Project
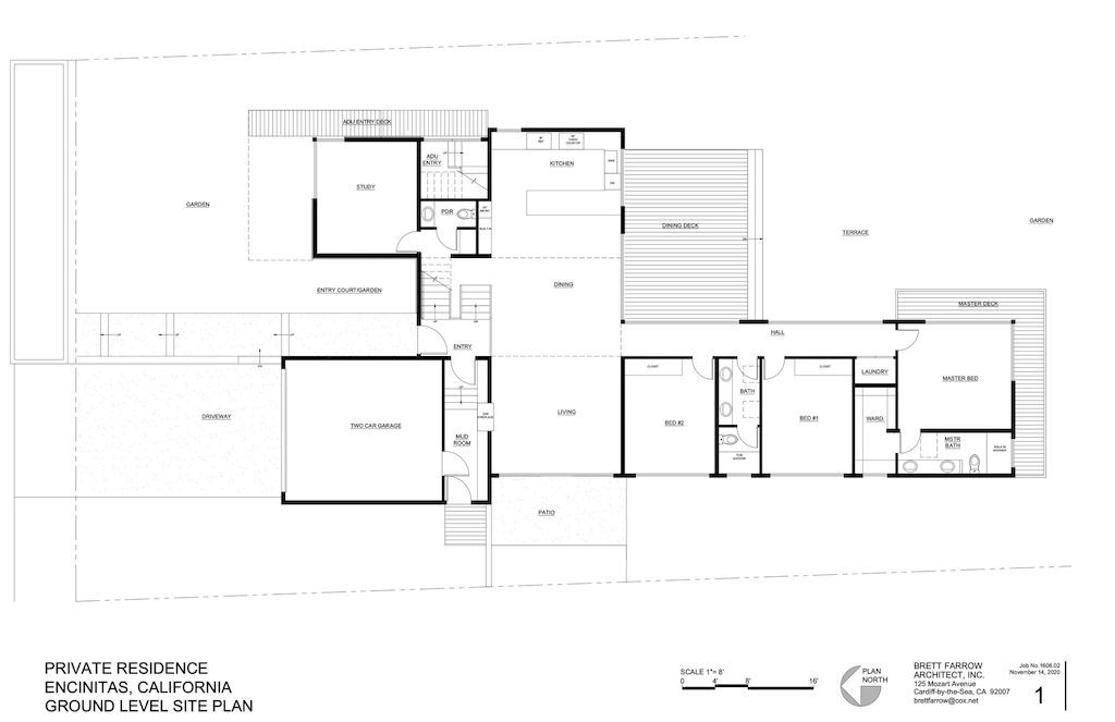
Impeccable design of the house named 605 Cornish designed by locally famed architect Brett Farrow that perched two blocks above downtown Encinitas and a few short blocks to the beach. This modern house equipped with top notch finishes throughout such as Miele kitchen, soaring ceilings, floor to ceiling panoramic glass doors/ windows and an ADU that offers a kitchen, living room, bathroom, bedroom with the spectacular views of ocean.
Indeed, by following the terrain the design sought to touch the land lightly by setting the home into the site. And avoid grading and earthwork. This also resulted in a stepped plan with shifting interior volumes and heigh ceilings that bring in natural light for warming in the winter and fresh sea breezes for cooling in the summer. Also, working with the site minimized disruptions, reduced costs and assisted in adapting to the artificial compression from local height regulations. The result from this effort was a layering of spaces and experiences that utilized stairs, terraces and cantilevers to create functional yet unexpected moments.
Once inside, Western red cedar used throughout the home to connect the interior and exterior spaces. In addition to the simple beauty of this west coast material, the use of sustainable, renewable resources was a guiding theme for many decisions throughout the design and in the construction process.
The Architecture Impeccable Design of the Project Information:
- Project Name: 605 Cornish House
- Location: Encinitas, California, United States
- Project Year: 2020
- Area: 286 m²
- Designed by: Brett Farrow Architect
- Interior Design: Studio Matsalla Interiors
ADVERTISEMENT

ADVERTISEMENT


ADVERTISEMENT

ADVERTISEMENT


ADVERTISEMENT

ADVERTISEMENT


ADVERTISEMENT

ADVERTISEMENT


The Impeccable Design of 605 Cornish House Gallery:
ADVERTISEMENT
Text by the Architects: Set on a sloping site in the Southern California coastal community of Encinitas, this multi-level, private residence for a young family was designed to create a family home that also allows for long visits by relatives.
Photo credit: Pixer Pros| Source: Brett Farrow Architect
For more information about this project; please contact the Architecture firm :
– Add: 125 Mozart Ave, Cardiff-by-the-Sea, CA 92007
– Tel: 760.230.6851
– Email: brettfarrow@cox.net
More Houses in United States here:
- GG House highlights the beautiful landscape by Robert Gurney Architect
- Opulence Abounds in this $3,799,999 Stunning Custom Home in Tennessee
- This minimalist and modern Estate in Nevada hits the Market for $5,475,000
- This $17,499,000 Remarkable Home in Menlo Park presents Two Levels of Absolute Luxury
- Five Shadows House Shows Rocky Mountain Grandeur by CLB Architects