Shiva Stuthi Residence with Freedom, Peaceful Spaces by Wright Inspires
Architecture Design of Shiva Stuthi Residence
Description About The Project
Shiva Stuthi Residence designed by Wright Inspires, located in a serene, residential locality in Bengaluru, this 2400 sqft linear plot has its shorter side facing a quiet park to the west and other residences abutting the rest of the three sides.
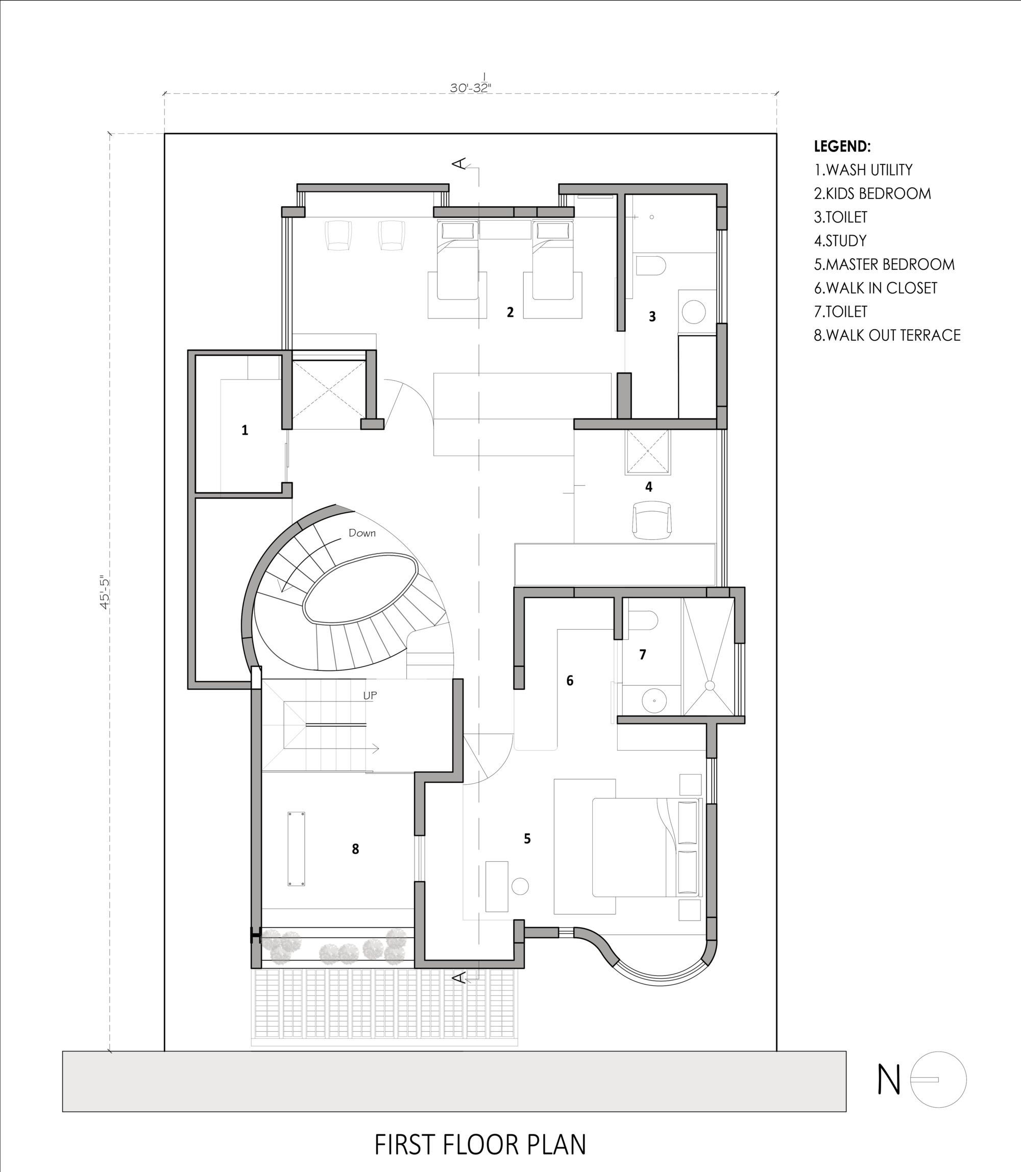
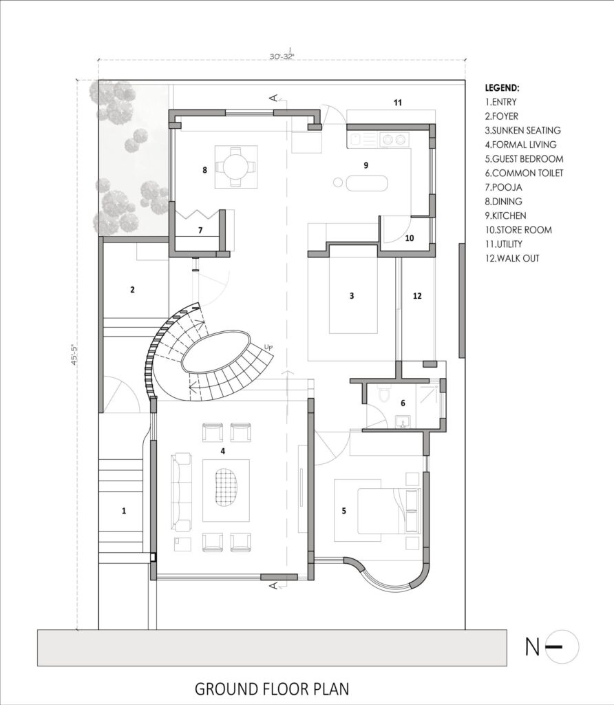
The entire structure of this house elevated by five feet from the approach level, with a linear walkaway leading one into the home. A multi – activity space quietly tucked into the basement, accompanied by a powder room. One is greeted by a garden at the entrance, followed by a foyer that connects to a spacious room, and a unique sunken seating area meant for chit – chatting. Indeed, it is a modern take on a traditional veranda, featured in ancestral homes of the region. Besides, the common areas of the house unfold into the living, dining, and kitchen which visually interconnected while being functionally independent. The parents’ room towards the front extends into a mellow nook seating space.
Especially, the house wholly built using wire – cut bricks employing a distinctive method of construction. The exposed insulated walls provide adequate thermal comfort. Hence, make the home responsive to its surroundings. The first floor boasts a waved filler – slab roof with eye – shaped skylights that extend to a fluttered pergola roof over the patio. The home also incorporates multiple green pockets across levels. And its use of natural elements for light and ventilation significantly lowers its energy requirements. Also, the most striking element is the bent glass façade that allows one to look out of the home while disallow passers – by to look into the home.
The Architecture Design Project Information:
- Project Name: Shiva Stuthi Residence
- Location: Bengaluru, India
- Project Year: 2021
- Area: 3734 ft²
- Designed by: Wright Inspires
ADVERTISEMENT

ADVERTISEMENT


ADVERTISEMENT

ADVERTISEMENT


ADVERTISEMENT

ADVERTISEMENT


ADVERTISEMENT

ADVERTISEMENT


ADVERTISEMENT

ADVERTISEMENT


ADVERTISEMENT

ADVERTISEMENT


ADVERTISEMENT

ADVERTISEMENT


ADVERTISEMENT

ADVERTISEMENT


The Shiva Stuthi Residence Gallery:
ADVERTISEMENT
























Text by the Architects: The home is named “Shiva Stuthi Residence” which references the concept of free – flowing and peaceful spaces. The plan was to bring in a spatial volume while create a cozy overtone within the confines of the home, thereby exude a calming energy and create an emotional connection with the user.
Photo credit: Yash R Jain | Source: Wright Inspires
For more information about this project; please contact the Architecture firm :
– Add: BEML Layout, 5th Stage, RR Nagar, Bengaluru, Karnataka 560098, India
– Tel: +91 98455 15435
– Email: yashrjain8@gmail.com
More Projects in India here:
- Banyan Tree House, Unique shape design Home by Tales of Design studio
- La Vie Residence, an Elegant House in India by SOHO Architects
- Flying House, a Holiday Home with Dramatic Western ghats by Studio LAB
- Brick House Showcases Culture & Grandeur of Solapur by Studio Humane
- Anvar Residence with Beautiful Landscape in India by Silpi Architects