Stunning 2-storey House – Ep 02 House in Mexico by Colectivo NDS
Architecture Design of Stunning 2-storey house – Ep 02 House
Description About The Project
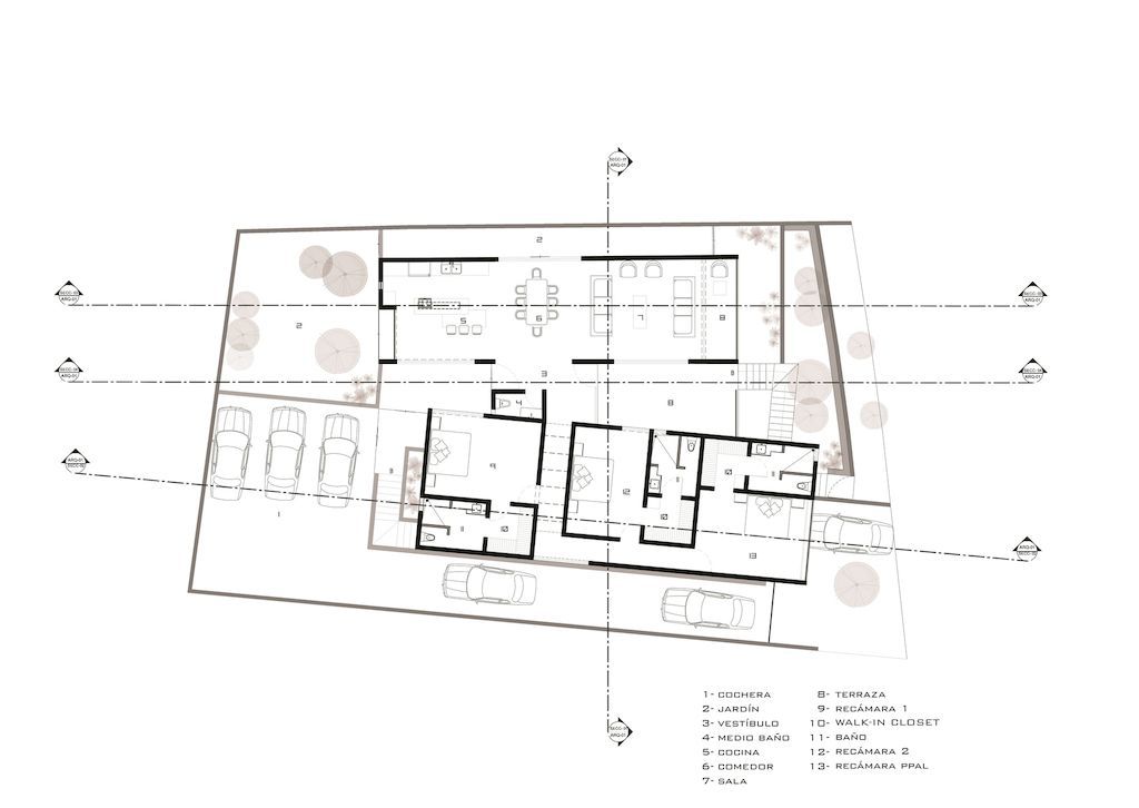
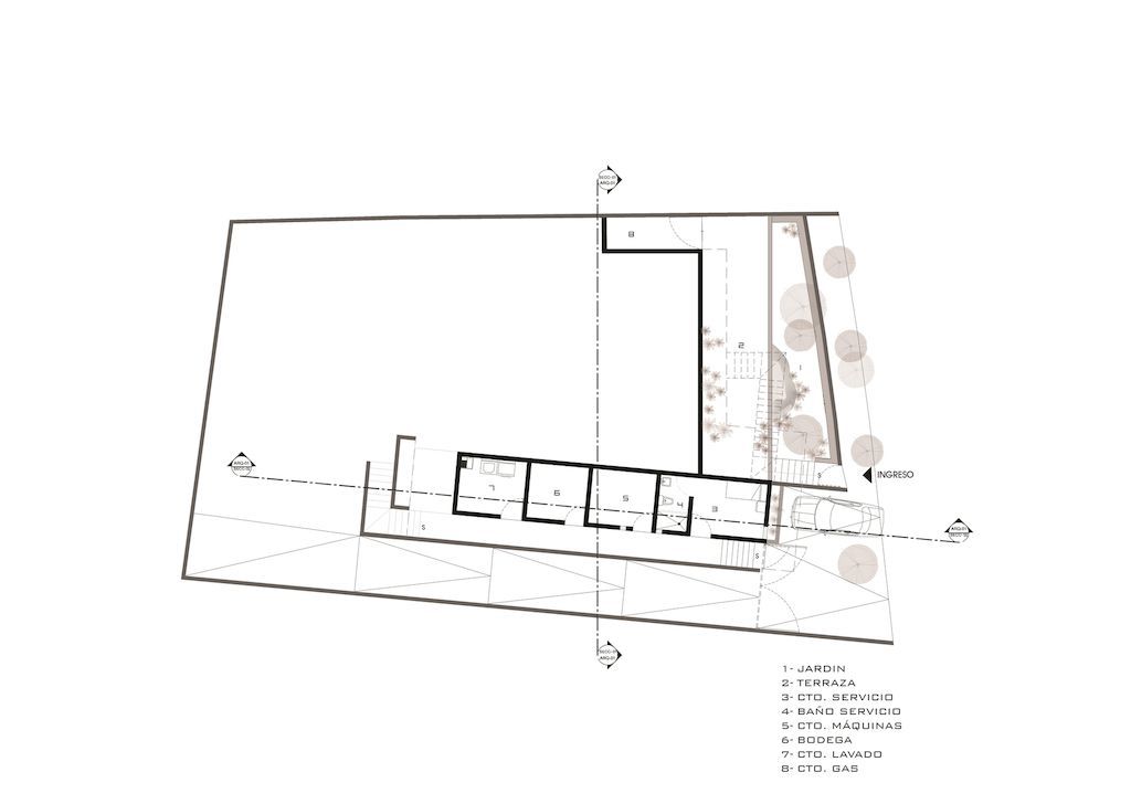
Stunning 2-storey house, the 340 m2 project, located in the El Palomar private neighborhood in Tlajomulco de Zuñiga, Jalisco, Mexico, recently designed by Colectivo NDS is an impressive project. This house has 2 floors, and 3 “boxes” with different proportions, materials, and programs inside, stacked with strategic placements and orientations to make a functional, practical, and attractive home. The ground floor, which contains the service rooms, in turn, serves as the foundation on which the upper private bedrooms module rests.
In addition to this, taking advantage of its location on one of the highest hills in the city and its natural slopes, the second module rests organically on the ground. Also, both upper modules, divided according to their use. And, connected to each other by a terrace connector space. Which serves as a bay between them and their different angles. The second module, containing the living areas, kitchen, dining room, spaces for public use by the family, has Guadalajara city in all its splendor as a visual highlight.
On the other hand, sustainability is present through the good use of water. A system made up of a biodigester, filters, irrigation system. Hence, allows it not to be wasted. But actually being reused or returned to the land, without needing to use public drainage systems.
The Architecture Design Project Information:
- Project Name: Ep 02 House
- Location: Tlajomulco de Zúñiga, Mexico
- Project Year: 2021
- Area: 3659 ft²
- Designed by: Colectivo NDS
ADVERTISEMENT

ADVERTISEMENT


ADVERTISEMENT

ADVERTISEMENT


ADVERTISEMENT

ADVERTISEMENT


ADVERTISEMENT

ADVERTISEMENT


ADVERTISEMENT

ADVERTISEMENT


ADVERTISEMENT

ADVERTISEMENT


ADVERTISEMENT

ADVERTISEMENT

This Stunning 2-storey house – Ep 02 House Gallery:
Text by the Architects: At the begging of the creative process, sometimes metaphors so intimately infused in the essence of its materialization,. That even if users not sure of the threads moved for them to experience it, they manage to appreciate the result intuitively. In house EP 02 this is so subtle and prevailing, that even without knowing it, you can be watching perfectly synchronized planes landing in a straight line from the balcony, like aligned stars marking the horizon. This achieved because the main axis of one of the 2 upper modules of the house traced at the same angle as the landing track of the Guadalajara international airport, approximately 10 km away.
Photo credit: Oscar Hernández| Source: Colectivo NDS
For more information about this project; please contact the Architecture firm :
– Add: Av Cubilete #185, Chapalita Sur, 45050 Zapopan, Jal., Mexico
– Tel: +52 33 1594 4946
More Projects in Mexico here:
- Avandaro 333 Residential Complex in Mexico by Zozaya Arquitectos
- Casa SEKIZ, take form of concrete large set dice by Di Frenna Arquitectos
- Casa Mao, Achieves Perfect balance of Contrasts by Di Frenna Arquitectos
- Water House, a Modern and Comfortable Home by Di Frenna Arquitectos
- Zapote House in Mexico, an Oasis Within a Noisy City by EURK Buildesign









