The E House, an Ecofriendly Building by Esperta Architecture – Interior
Architecture Design of The E House
Description About The Project
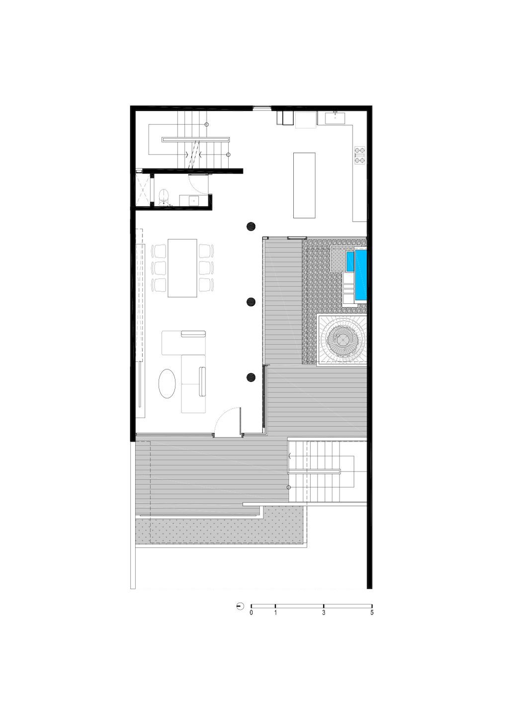
The E House designed by Esperta Architecture – Interior located in Jakarta, Indonesia with the ideal of friendly with environment. The house divided into 3 levels. The first level is service & office area, the second one is as semi private area, which has kitchen, dining area, and living room. Then, the third one is as private area for bedroom and leisure activities.
The architect did a sun study for this location because it’s facing West. Then, the result from the studies stated that it still be able to receive morning sunlight. By giving openings at the sides of this building. In consideration of applying an air cross ventilation into this building, architect provides openings at each side and level. Also, a lifted skylight installed at the top of stairs. So it can enhance the air circulation at the back side of the house.
Floated mass block is the eccentric part of this house with 6m cantilever. To support its floating idea as the highlight, architect made the second floor full of glass to make it feel lighter than the floated mass. Also, the mass block made with concrete panels and highlighted it with light along the front box. The other eccentric part of this building is its dynamic shadow throughout the year. Based on their sun study which was mentioned earlier, architect made use of the sun’s movement by getting a lot of east sunlight and shadow at west side. The user can enjoy sunlight and sunshade throughout the year.
The Architecture Design Project Information:
- Project Name: The E House
- Location: Grogol Petamburan, Indonesia
- Project Year: 2021
- Area: 223 m²
- Designed by: Esperta Architecture – Interior
ADVERTISEMENT

ADVERTISEMENT


ADVERTISEMENT

ADVERTISEMENT


ADVERTISEMENT

ADVERTISEMENT


ADVERTISEMENT

ADVERTISEMENT


ADVERTISEMENT

ADVERTISEMENT


ADVERTISEMENT

ADVERTISEMENT


ADVERTISEMENT

ADVERTISEMENT


ADVERTISEMENT

The The E House Gallery:
ADVERTISEMENT
Text by the Architects: E House has 4 levels and it is built on 203 m2 land area, located in Jakarta, Indonesia. Each level has its own programming function. First level as service & office area. Also, second level as semi private area, which has kitchen, dining area, and living room, third and fourth level as private area for bedroom and leisure activities. The architect developed the mass of the building with these three “E” considerations : Ecofriendly, Eccentric, and Elevate. Developing an ecofriendly building, architect started by using a lot of sun shade and air cross ventilation. So user will save energy and use less electricity.
Photo credit: Mario Wibowo| Source: Esperta Architecture – Interior
For more information about this project; please contact the Architecture firm :
– Add: Jl. Bulevard Artha Gading, RT.18/RW.8, Klp. Gading Bar., Kec. Klp. Gading, Kota Jkt Utara, Daerah Khusus Ibukota Jakarta 14240, Indonesia
– Tel: +62 21 45873976
– Email: info@esperta.co
More Projects in Indonesia here:
- Villa WRK in Kabupaten Badung, Indonesia by Parametr Indonesia
- Golf residence, warm intimate home with golf field views by Gets Architects
- Rubic JGC residence, modern home combine feng shui by Gets Architects
- Modern J House, a Villa with Impressive Corner Plot by y0 Design Architect
- B House with tropical mixed with rustic Balinese design by Gohte Architects








