AD House for Comfortable Living J.A. Becker Arquitetura e Construções
Architecture Design of AD House
Description About The Project
AD house designed by J.A. Becker Arquitetura e Construções, located in a noble condominium in the city of Novo Hamburgo, Rio Grande do Sul, and with a privileged view to the outside. Indeed, this house meets the owner’s demand and characteristics of the family for a modern house yet still comfortable and practicality of everyday life. In addition to this, the idea developed from the visuals of the surroundings. In addition to the great challenge of designing a house with an extensive program of needs from a land with more than 7 meters of slope and irregular shape. Also, to meet several legal conditions.
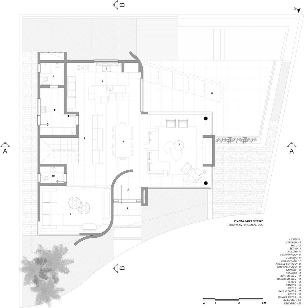
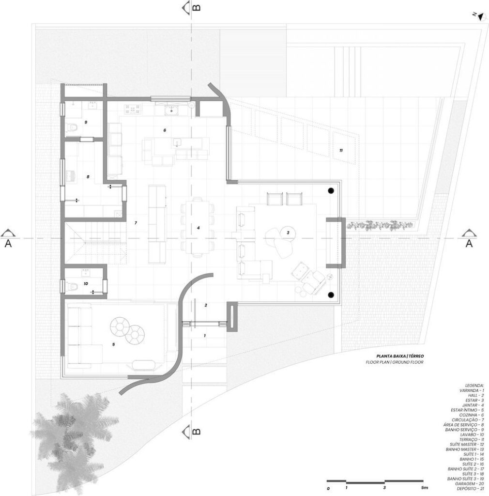
This house distributed in 03 floors: basement, ground floor and second floor, defined based on their uses. The large volume with a trapezoidal shape, on the second floor, intended for the intimate area. And the ground floor, with generous openings that integrate the external area, stands out. Besides, the basement serves the garage and storage of the residence.
Once insides, in the main access, the curved wall in exposed concrete, stands out for its form and functionality and aims to induce the visitor to the social area. The element also has the function of bringing privacy to intimate living and the kitchen. On the other hand, the material used on the exterior of the residence is reflected in the internal environments, where a connection created through natural coatings. Such as wood, exposed concrete and miracema stone, making the residence welcoming and unifying the language of the environments.
The Architecture Design Project Information:
- Project Name: AD House
- Location: Novo Hamburgo, Rio Grande do Sul, Brazil
- Project Year: 2021
- Area: 512 m²
- Designed by: J.A. Becker Arquitetura e Construções
ADVERTISEMENT

ADVERTISEMENT


ADVERTISEMENT

ADVERTISEMENT


ADVERTISEMENT

ADVERTISEMENT


ADVERTISEMENT

ADVERTISEMENT


ADVERTISEMENT

ADVERTISEMENT


ADVERTISEMENT

ADVERTISEMENT


ADVERTISEMENT

ADVERTISEMENT


ADVERTISEMENT

ADVERTISEMENT


ADVERTISEMENT

ADVERTISEMENT


ADVERTISEMENT

The AD House Gallery:
ADVERTISEMENT
Text by the Architects: Located in a noble condominium in the city of Novo Hamburgo, Rio Grande do Sul, and with a privileged view, Casa AD brings the external environment as the protagonist. The house was designed for a French designer and his family, who already owned a house designed by the office, but were looking for a new home.
Photo credit: | Source: J.A. Becker Arquitetura e Construções
For more information about this project; please contact the Architecture firm :
– Add: R. Gomes Portinho, 1740 – Mauá, Novo Hamburgo – RS, 93548-370, Brazil
– Tel: +55 51 3594-7373
– Email: contato@jabecker.com.br
More Projects in Brazil here:
- EL House in Brazil by Estudio Centro Arquitetura e Urbanismo
- Anima House, Unique Design with Wooden System by 24 7 Arquitetura
- Passos House with Open Concept and Integrated Spaces by David Guerra
- S&R Residence with Simply Architecture by Voo Arquitetura e Engenharia
- House Guaeca II Located in a Green Area in Brazil by AMZ Arquitetos






