Athachi Farmhouse with Raw, Earthy Tone Exterior by Alchemy Architects
Architecture Design of Athachi Farmhouse
Description About The Project
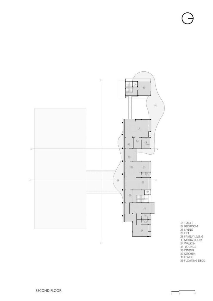
Athachi Farmhouse is a holiday home located in Palakkad Pass, Kerala, India, designed by Alchemy Architects. The client, a nature lover NRI, wanted a home that reflected his farming principles and love for greenery in the tropical zone. Indeed, the design approach was to utilize the expansive views of the on-site 3-acre natural water body overlooking the Ghats. Hence, creating two primary zones: a residential zone and a party gathering zone. The residential unit has 6 suite rooms placed linearly with wide verandahs and a 3 bedded studio on the second floor for the host with wide overhanging decks overlooking the Ghats on either side.
On the other hand, the material used in the project is raw and basic with a minimalist approach that flaunts bare materials and structural elements. The pinhole brick in the facade, dressed stone walls, polished unpainted cement walls, and polished concrete floors with handmade cement tiles are supported by muted and earthy tones to go hand in hand with the context. The walls have a larger volume of openings to bring in more ventilation and light.
Moreover, the party hall can hold 100 Pax inside with a 24-seater dining area that has a cast-in-site dining table spanning 24ft, known as “The Cantilevered Monolith.” The gathering zone with the Party hall is placed at the end of the sequence, giving an interconnecting Dining, for it to use the centrally formed decks and the amphitheater at the back with the larger volume of openings that suggests infinite visual connection throughout for their congregations. The home’s design approach reflects the client’s love for nature and farming principles, and the materials used convey a raw and earthy feel.
The Architecture Design Project Information:
- Project Name: Athachi Farmhouse
- Location: Palakkad, India
- Project Year: 2022
- Area: 35000 ft²
- Designed by: Alchemy Architects
ADVERTISEMENT

ADVERTISEMENT


ADVERTISEMENT

ADVERTISEMENT


ADVERTISEMENT

ADVERTISEMENT


ADVERTISEMENT

ADVERTISEMENT


ADVERTISEMENT

ADVERTISEMENT


ADVERTISEMENT

ADVERTISEMENT


ADVERTISEMENT

ADVERTISEMENT


ADVERTISEMENT

ADVERTISEMENT


ADVERTISEMENT

ADVERTISEMENT

The Athachi Farmhouse Gallery:


























Text by the Architects: A nature lover NRI chose to have a close-to-heart Holiday Home. Nestled in the famous Farmland of Kerala, on the flatlands of Palakkad Pass flanked by the Western Ghats on either side, lead to the conceptualization of a Athachi Farmhouse that can hold his family together during his vacations back in his homeland. Besides, the limited time frame gave birth to the idea of using steel structures for 80% of the built area.
Photo credit: Shamanth Patil J | Source: Alchemy Architects
For more information about this project; please contact the Architecture firm :
– Add: India
– Intagram: https://www.instagram.com/alchemy_excite/
More Projects in India here:
- Rooted House, a simple yet bold aesthetic in India by Triple O Studio
- Flying House, a Holiday Home with Dramatic Western ghats by Studio LAB
- A House of Interaction with open plan by AANGAN Architects
- House of Lines and Circles in India by Cognition Design Studio
- Brick House Showcases Culture & Grandeur of Solapur by Studio Humane