Clare House, a Prominent Luxurious White Home by Invilla Architecture
Architecture Design of Clare House
Description About The Project
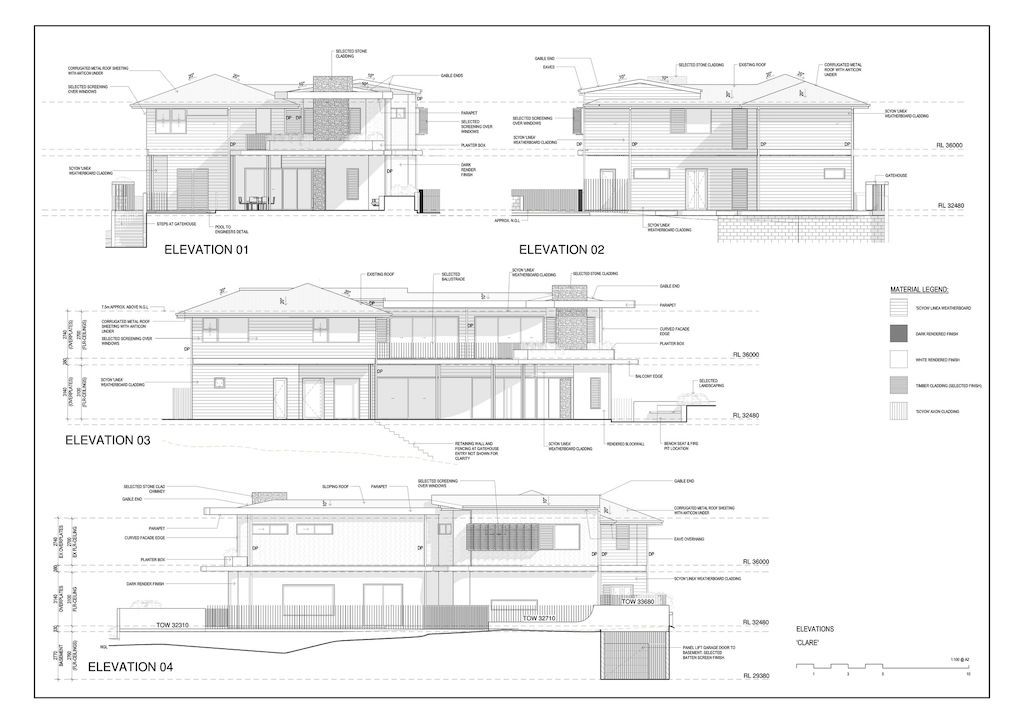
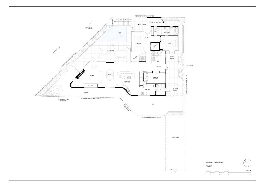
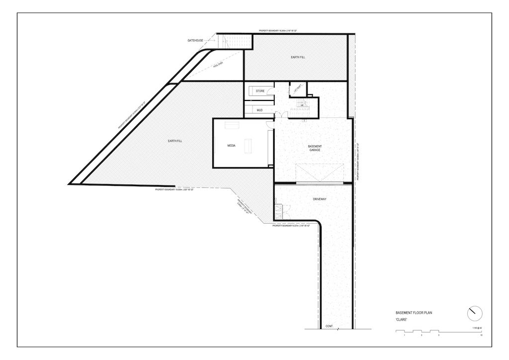
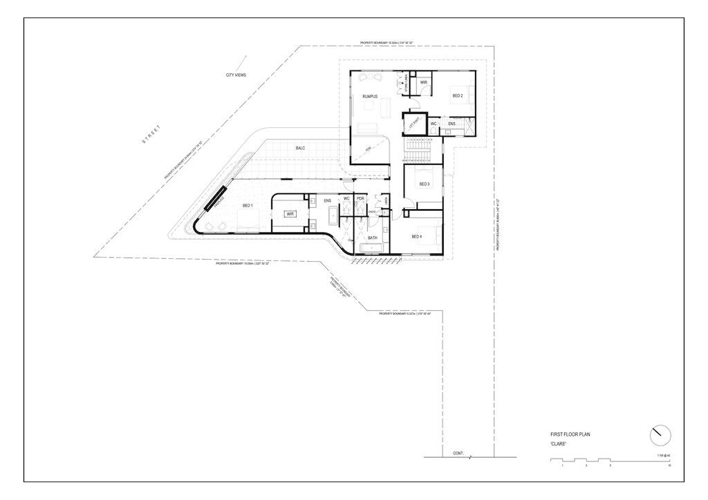
Clare House designed by Invilla Architecture, set on an awkward L-shaped sloping inner-city Brisbane block. Indeed, from the exterior, the house is impressive and bolt with the white facade. The concept was to create a home that followed the unique shape of the block, both in plan and in section. Also, taking advantage of the northeast aspect and city views.
The existing 1946 house was kept, lifted, and built under. The original house doesn’t have hallmark features of pre-war Queenslanders. So this renovation aimed to incorporate the old house into the new design, rather than contrast it. Heritage is acknowledged by highlighting pitched roofs by framing around them and wrapping the new extension in a mix of weatherboard, rendered block, and natural stone. Once insides, the living area such as living room, dining room designed with open plan and create connection to the outside.
In addition to this, the landscaping and facade appear as a series of sweeping curves that terrace from the natural ground all the way up to the top of the roof. A continuous and flowing layout through many openings include double opposing corner stacking doors that hide away behind pillars of natural stone. Also, the outside let in via planter boxes and extends into the center of the home via a feature palm tree.
The Architecture Design Project Information:
- Project Name: Clare House
- Location: Auchenflower, Australia
- Project Year: 2021
- Area: 670 m²
- Designed by: INVILLA Architecture
ADVERTISEMENT

ADVERTISEMENT


ADVERTISEMENT

ADVERTISEMENT


ADVERTISEMENT

ADVERTISEMENT


ADVERTISEMENT

ADVERTISEMENT


ADVERTISEMENT

ADVERTISEMENT


ADVERTISEMENT

ADVERTISEMENT


ADVERTISEMENT

ADVERTISEMENT


ADVERTISEMENT

The Clare House Gallery:
ADVERTISEMENT






















Text by the Architects: Clare, an ode to the previous owner, is a series of sweeping curved terraces built around an existing pre-war Queenslander, set on an awkward L-shaped sloping inner-city Brisbane block. The design takes advantage of its north aspect, city views, and dual frontage and puts raw materials and landscaping on show. The concept of Clare House was to create a home that followed the unique shape of the block, both in plan and in section, taking advantage of the northeast aspect and city views.
Photo credit: Brock Beazley | Source: INVILLA Architecture
For more information about this project; please contact the Architecture firm :
– Add: 1/23 Breene Pl, Morningside QLD 4170, Australia
– Tel: +61 7 3113 9037
– Email: design@invilla.com.au
More Projects in Australia here:
- Mountford Road House in Australia by Shane Marsh Architects
- Bilgola Beach House Transforms with Operable Shutters by Olson Kundig
- Birch Tree House, an impressive single – story frontage by H&E Architects
- Bona Vista House with a Warm and Cozy Spaces by Architect Prineas
- Wallaby Hill House Reflects the Outdoor Lifestyle in Australia by Avver