Mentari House, Haven of Light, Air, Privacy by Axial Studio
Architecture Design of Mentari House
Description About The Project
Mentari House designed by Axial Studio, nestled on a corner lot in Tangerang, Banten, Indonesia, is a thoughtfully designed family home that harmonizes privacy, natural light, and airflow. Completed in early 2023, this modern residence balances functionality and comfort to suit the needs of a family with two children. The design optimizes spatial flow across its multi-level layout, creating distinct zones for communal living, private retreat, and dynamic activities.
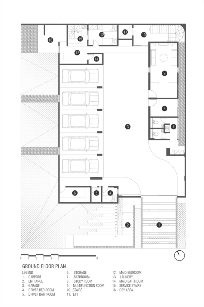
The ground floor serves practical needs with a garage and service areas, while the elevated main floor accommodates inviting living spaces, fostering connection among family and guests. The second floor is a private sanctuary, housing bedrooms equipped with large, laminated-glass windows that minimize heat while inviting abundant natural light. Topping it all, the rooftop offers a multifunctional space combining a work area, gym, and breathtaking panoramic views.
Tailored for the tropical climate, Mentari House features a second skin on its western façade to shield interiors from harsh sunlight. This adjustable architectural element enables precise control over light and temperature, ensuring a comfortable living environment. Cross ventilation and operable windows enhance natural cooling, supported by a lush garden that facilitates airflow and brings greenery into the heart of the home. The strategic elevation of the living areas above ground level ensures privacy while maintaining a bright, airy atmosphere throughout.
The home exemplifies sustainable design principles, seamlessly blending modern aesthetics with climatic adaptability, making it a true sanctuary for its residents.
The Architecture Design Project Information:
- Project Name: Mentari House
- Location: Tangerang, Indonesia
- Project Year: 2023
- Area: 600 m²
- Designed by: Axial Studio
ADVERTISEMENT

ADVERTISEMENT


ADVERTISEMENT

ADVERTISEMENT


ADVERTISEMENT

ADVERTISEMENT


ADVERTISEMENT

ADVERTISEMENT


ADVERTISEMENT

ADVERTISEMENT


ADVERTISEMENT

ADVERTISEMENT


ADVERTISEMENT

ADVERTISEMENT


ADVERTISEMENT

ADVERTISEMENT


The Mentari House Gallery:
ADVERTISEMENT
























Text by the Architects: Mentari House in Tangerang, Banten, Indonesia, is situated on a corner lot that was completed in early 2023. This residence harmonizes privacy, natural light, and airflow, creating a well-balanced living environment. The layout accommodates the needs of a family with two children, ensuring a comfortable space that supports family activities and individual relaxation.
Photo credit: Mario Wibowo Photography | Source: Axial Studio
For more information about this project; please contact the Architecture firm :
– Add: Jl. BSD raya barat, Tangerang, Indonesia, Banten
– Tel: +62 812-1248-4375
– Email: info@axialstudio.id
More Projects in Indonesia here:
- Niji House with Eco-Friendly Design by Patio Livity
- EA Residence, Tropical Retreat in Indonesia by Jettaliving
- ETC 2.0 House, Contemporary Tropical Retreat by Rakta Studio
- ETC 2.0 House, Contemporary Tropical Retreat by Rakta Studio
- Villa Ardjuno, A Serene Hillside Retreat by Jettaliving