Ishtika Aalaya Residence, Chic Brick House by Studio Built Environment
Architecture Design of Ishtika Aalaya Residence
Description About The Project
Ishtika Aalaya Residence designed by Studio Built Environment is an impressive project which explores the possibility of combine the modern identity of a house with a traditional sense of a home.
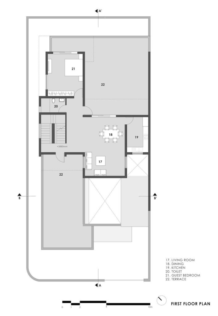
This house organized into three levels. The ground floor houses a single lady and her 10 years old daughter. Besides, the first floor planned for long – stay visitors, and the second floor intended for servant use. The design revolves around a courtyard that offers the users a private usable space rather than a mere light well. Hence, create a dynamic dialogue between indoor and outdoor spaces.
On the other hand, the ramp offers barrier – free access to the ground floor at the same time segregate the entrance to the upper floors through the side staircase yet interconnected from the inside. This ramp further leads to the backyard, contributing to an interesting continuity. Along with the backyard are two bedrooms, placed carefully to ensure privacy. The master bedroom is a seamless space with an exposed grey concrete ceiling and wide fenestrations for a visual connection with the backyard. In addition to this, the interior finishes of the private spaces planned in subtle tones. Whereas the Ochre – colored exposed concrete ceiling adds vibrance to the living area.
Indeed, the composition of the elements and spaces truly brings to users an interesting and enjoyable experience as they are accommodated in a series of spaces harmonized with a comfort of a home.
The Architecture Design Project Information:
- Project Name: Ishtika Aalaya Residence
- Location: Panchkula, India
- Project Year: 2020
- Area: 370 m²
- Designed by: Studio Built Environment
ADVERTISEMENT

ADVERTISEMENT


ADVERTISEMENT

ADVERTISEMENT


ADVERTISEMENT

ADVERTISEMENT


ADVERTISEMENT

ADVERTISEMENT


ADVERTISEMENT

ADVERTISEMENT


ADVERTISEMENT

ADVERTISEMENT


ADVERTISEMENT

ADVERTISEMENT


ADVERTISEMENT

ADVERTISEMENT


The Ishtika Aalaya Residence Gallery:
ADVERTISEMENT
























Text by the Architects: “Ishtika Aalaya” located in Chandigarh, India, this brick abode – Ishtika Aalaya Residence has been inspired by the clients’ longing for an earthy home. The composite climate of the place demands the building to be cooler for most of the year and requires ample sunlight during the harsh winters. Therefore, the layout has been dictated by the sun path analysis.
Photo credit: Purnesh Dev Nikhanj | Source: Studio Built Environment
For more information about this project; please contact the Architecture firm :
– Add: 519, Sector 18 B, Chandigarh, 160018, India
– Tel: +91 78372 91765
– Email: studio@sbearchitects.com
More Projects in India here:
- Rooted House, a simple yet bold aesthetic in India by Triple O Studio
- Aham House, Unique statement of traditional style by i2a Architects Studio
- A House of Interaction with open plan by AANGAN Architects
- House of Lines and Circles in India by Cognition Design Studio
- Raintree House, a climate responsive Chennai home by Khosla Associates